Elected Officials
Courts
Departments
Initiatives
Open Government
About
Login / Register
Home
/
Property & Tax Records
/
Property Records
/
Property & Tax Search
/
Parcel Profile
/
Print View
Search for Another Parcel
Parcel Profile
Historical Card
Sketches
Photos
Tax Map
Taxes
Print View
Print This Page
Address: 1530 BUFFALO RD
Parcel: 15021010012200
Parcel Profile
Address
1530 | BUFFALO | RD
Street Status
PAVED | SIDEWALK
School District
CITY OF ERIE SCHOOL
Acreage
0.1194
Classification
R
Land Use Code
SINGLE FAMILY
Legal Description
1530 BUFFALO RD 40 X 130
Square Feet
960
Topo
LEVEL
Utility
ALL PUBLIC
Zoning
Please contact your municipal zoning officer
Deed Book
0624
Deed Page
1222
2026 Tax Values
Land Value / Taxable
6,300 / 6,300.00
Building Value / Taxable
33,240 / 33,240.00
Total Value / Taxable
39,540 / 39,540.00
Clean & Green
Inactive
Homestead Status
Active
Farmstead Status
Inactive
Lerta Amount
0.00
Lerta Expiration Year
2015
Residential Data
Card 1
Style
BUNGALOW
Basement
FULL
Year Built
1928
Exterior Wall
FRAME
Total Living Area
960
Full Baths
1
Half Baths
0
Fuel Type
GAS
Heating
CENTRAL
Heating System
FORCED AIR
Stories
1.0
Total Bedrooms
3
Total Family Rooms
0
Total Rooms
5
Fireplaces
0
Other Buildings & Yards
No OBY Data Found
Sales History
Sale Date
Type
Price
Book / Page
Other Info
3/19/1999
0
0624 / 1222
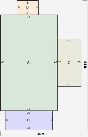
Parcel Sketches
Residential Card 1
A
MAIN
960 square feet
B
EFP ENCL FRAME PORCH
54 square feet
C
CARPT CARPORT
200 square feet
D
OFP OPEN FRAME PORCH
160 square feet
Parcel Images
Please note:
this tab is for informational purposes only and may not show all delinquencies, see the Taxes tab for more accurate delinquent taxes due.