Elected Officials
Courts
Departments
Initiatives
Open Government
About
Login / Register
Home
/
Property & Tax Records
/
Property Records
/
Property & Tax Search
/
Parcel Profile
/
Print View
Search for Another Parcel
Parcel Profile
Historical Card
Sketches
Photos
Tax Map
Taxes
Print View
Print This Page
Address: 1904 SCHAAL AVE
Parcel: 15021010020400
Parcel Profile
Address
1904 | SCHAAL | AVE
Street Status
PAVED | SIDEWALK
School District
CITY OF ERIE SCHOOL
Acreage
0.3300
Classification
R
Land Use Code
SINGLE FAMILY
Legal Description
1904 SCHAAL AVE 120 X 120
Square Feet
1344
Topo
LEVEL
Utility
ALL PUBLIC
Zoning
Please contact your municipal zoning officer
Deed Book
2019
Deed Page
016542
2026 Tax Values
Land Value / Taxable
7,500 / 7,500.00
Building Value / Taxable
31,760 / 31,760.00
Total Value / Taxable
39,260 / 39,260.00
Clean & Green
Inactive
Homestead Status
Inactive
Farmstead Status
Inactive
Lerta Amount
0
Lerta Expiration Year
0
Residential Data
Card 1
Style
OLD STYLE
Basement
FULL
Year Built
1918
Exterior Wall
ALUMINUM/VINYL
Total Living Area
1344
Full Baths
1
Half Baths
0
Fuel Type
GAS
Heating
CENTRAL
Heating System
FORCED AIR
Stories
2.0
Total Bedrooms
3
Total Family Rooms
0
Total Rooms
6
Fireplaces
0
Other Buildings & Yards
Description
Built
Width
Length
Area
FRAME OR CB DETACHED GARAGE
1918
14
20
280
Sales History
Sale Date
Type
Price
Book / Page
Other Info
8/22/2019
LAND & BUILDING
21500
2019 / 016542
SPECIAL WARRANTY DEED
6/8/2004
LAND & BUILDING
0
1143 / 0037
QUIT CLAIM DEED
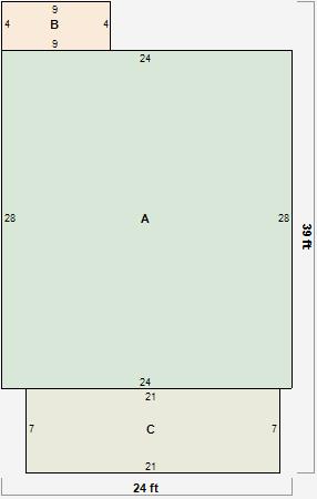
Parcel Sketches
Residential Card 1
A
MAIN
672 square feet
B
FR UT FRAME UTILITY BUILDING
36 square feet
C
EFP ENCL FRAME PORCH
147 square feet
Parcel Images
Please note:
this tab is for informational purposes only and may not show all delinquencies, see the Taxes tab for more accurate delinquent taxes due.