Elected Officials
Courts
Departments
Initiatives
Open Government
About
Login / Register
Home
/
Property & Tax Records
/
Property Records
/
Property & Tax Search
/
Parcel Profile
/
Print View
Search for Another Parcel
Parcel Profile
Historical Card
Sketches
Photos
Tax Map
Taxes
Print View
Print This Page
Address: 1119 SENECA ST
Parcel: 15021024011100
Parcel Profile
Address
1119 | SENECA | ST
Street Status
PAVED | SIDEWALK
School District
CITY OF ERIE SCHOOL
Acreage
0.0841
Classification
R
Land Use Code
SINGLE FAMILY
Legal Description
1119 SENECA ST 33.78XIRR
Square Feet
900
Topo
LEVEL
Utility
ALL PUBLIC
Zoning
Please contact your municipal zoning officer
Deed Book
2020
Deed Page
018864
2025 Tax Values
Land Value / Taxable
5,700 / 5,700.00
Building Value / Taxable
3,000 / 3,000.00
Total Value / Taxable
8,700 / 8,700.00
Clean & Green
Inactive
Homestead Status
Inactive
Farmstead Status
Inactive
Lerta Amount
0
Lerta Expiration Year
0
Residential Data
Card 1
Style
TWIN
Basement
FULL
Year Built
1918
Exterior Wall
BRICK
Total Living Area
900
Full Baths
1
Half Baths
0
Fuel Type
GAS
Heating
CENTRAL
Heating System
FORCED AIR
Stories
2.0
Total Bedrooms
2
Total Family Rooms
0
Total Rooms
4
Fireplaces
0
Other Buildings & Yards
No OBY Data Found
Sales History
Sale Date
Type
Price
Book / Page
Other Info
9/17/2020
LAND & BUILDING
1
2020 / 018864
FIDUCIARY DEED
11/23/1992
0
0241 / 1060
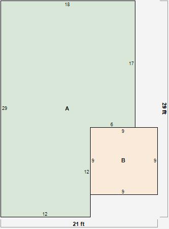
Parcel Sketches
Residential Card 1
A
MAIN
450 square feet
B
EMP ENCL MASONRY PORCH
81 square feet
Parcel Images