Elected Officials
Courts
Departments
Initiatives
Open Government
About
Login / Register
Home
/
Property & Tax Records
/
Property Records
/
Property & Tax Search
/
Parcel Profile
/
Print View
Search for Another Parcel
Parcel Profile
Historical Card
Sketches
Photos
Tax Map
Taxes
Print View
Print This Page
Address: 2022 E 12 ST
Parcel: 15021024022400
Parcel Profile
Address
2022 | E | 12 | ST
Street Status
PAVED | SIDEWALK
School District
CITY OF ERIE SCHOOL
Acreage
0.0595
Classification
R
Land Use Code
SINGLE FAMILY
Legal Description
2022 E 12 ST IRRX95
Square Feet
900
Topo
LEVEL
Utility
ALL PUBLIC
Zoning
Please contact your municipal zoning officer
Deed Book
2015
Deed Page
019586
2026 Tax Values
Land Value / Taxable
5,300 / 5,300.00
Building Value / Taxable
8,400 / 8,400.00
Total Value / Taxable
13,700 / 13,700.00
Clean & Green
Inactive
Homestead Status
Active
Farmstead Status
Inactive
Lerta Amount
0
Lerta Expiration Year
0
Residential Data
Card 1
Style
TWIN
Basement
FULL
Year Built
1918
Exterior Wall
BRICK
Total Living Area
900
Full Baths
1
Half Baths
0
Fuel Type
GAS
Heating
CENTRAL
Heating System
FORCED AIR
Stories
2.0
Total Bedrooms
2
Total Family Rooms
0
Total Rooms
4
Fireplaces
0
Other Buildings & Yards
No OBY Data Found
Sales History
Sale Date
Type
Price
Book / Page
Other Info
9/9/2015
LAND & BUILDING
13001
2015 / 019586
SPECIAL WARRANTY DEED
1/14/2002
LAND & BUILDING
0
843 / 1372
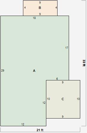
Parcel Sketches
Residential Card 1
A
MAIN
450 square feet
B
WDDCK WOOD DECKS
36 square feet
C
OFP OPEN FRAME PORCH
90 square feet
Parcel Images
Please note:
this tab is for informational purposes only and may not show all delinquencies, see the Taxes tab for more accurate delinquent taxes due.