Elected Officials
Courts
Departments
Initiatives
Open Government
About
Login / Register
Home
/
Property & Tax Records
/
Property Records
/
Property & Tax Search
/
Parcel Profile
/
Print View
Search for Another Parcel
Parcel Profile
Historical Card
Sketches
Photos
Tax Map
Taxes
Print View
Print This Page
Address: 1122 SENECA ST
Parcel: 15021024030900
Parcel Profile
Address
1122 | SENECA | ST
Street Status
PAVED | SIDEWALK
School District
CITY OF ERIE SCHOOL
Acreage
0.0610
Classification
R
Land Use Code
SINGLE FAMILY
Legal Description
1122 SENECA ST IRRX95
Square Feet
1098
Topo
LEVEL
Utility
ALL PUBLIC
Zoning
Please contact your municipal zoning officer
Deed Book
2021
Deed Page
022397
2026 Tax Values
Land Value / Taxable
5,300 / 5,300.00
Building Value / Taxable
8,900 / 8,900.00
Total Value / Taxable
14,200 / 14,200.00
Clean & Green
Inactive
Homestead Status
Inactive
Farmstead Status
Inactive
Lerta Amount
0
Lerta Expiration Year
0
Residential Data
Card 1
Style
TWIN
Basement
FULL
Year Built
1918
Exterior Wall
BRICK
Total Living Area
1098
Full Baths
1
Half Baths
0
Fuel Type
GAS
Heating
CENTRAL
Heating System
FORCED AIR
Stories
2.0
Total Bedrooms
3
Total Family Rooms
0
Total Rooms
5
Fireplaces
0
Other Buildings & Yards
No OBY Data Found
Sales History
Sale Date
Type
Price
Book / Page
Other Info
8/20/2021
LAND & BUILDING
10970
2021 / 022397
DEED
8/27/1998
0
0583 / 1282
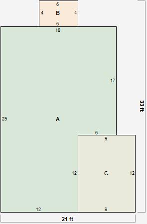
Parcel Sketches
Residential Card 1
A
MAIN
450 square feet
B
WDDCK WOOD DECKS
24 square feet
C
1SMAS MASONRY
108 square feet
Parcel Images
Please note:
this tab is for informational purposes only and may not show all delinquencies, see the Taxes tab for more accurate delinquent taxes due.