Elected Officials
Courts
Departments
Initiatives
Open Government
About
Login / Register
Home
/
Property & Tax Records
/
Property Records
/
Property & Tax Search
/
Parcel Profile
/
Print View
Search for Another Parcel
Parcel Profile
Historical Card
Sketches
Photos
Tax Map
Taxes
Print View
Print This Page
Address: 2010 JUNE ST
Parcel: 15021028010100
Parcel Profile
Address
2010 | JUNE | ST
Street Status
PAVED
School District
CITY OF ERIE SCHOOL
Acreage
0.3471
Classification
R
Land Use Code
TWO FAMILY
Legal Description
2010 JUNE ST 120 X 126
Square Feet
1492
Topo
LEVEL
Utility
ALL PUBLIC
Zoning
Please contact your municipal zoning officer
Deed Book
2021
Deed Page
029020
2026 Tax Values
Land Value / Taxable
7,600 / 7,600.00
Building Value / Taxable
32,360 / 32,360.00
Total Value / Taxable
39,960 / 39,960.00
Clean & Green
Inactive
Homestead Status
Active
Farmstead Status
Inactive
Lerta Amount
0
Lerta Expiration Year
0
Residential Data
Card 1
Style
SPLIT LEVEL
Basement
FULL
Year Built
1918
Exterior Wall
MASONRY & FRAME
Total Living Area
1492
Full Baths
2
Half Baths
0
Fuel Type
GAS
Heating
CENTRAL
Heating System
FORCED AIR
Stories
1.0
Total Bedrooms
2
Total Family Rooms
1
Total Rooms
6
Fireplaces
0
Other Buildings & Yards
Description
Built
Width
Length
Area
FRAME OR CB DETACHED GARAGE
1970
22
26
572
Sales History
Sale Date
Type
Price
Book / Page
Other Info
10/29/2021
LAND & BUILDING
39000
2021 / 029020
DEED
8/3/2021
LAND & BUILDING
7800
2021 / 020560
QUIT CLAIM DEED
2/5/2016
LAND & BUILDING
4770
2016 / 002523
QUIT CLAIM DEED
5/22/2015
LAND & BUILDING
4355
2015 / 010289
SHERIFF'S DED
10/23/1998
0
0595 / 0710
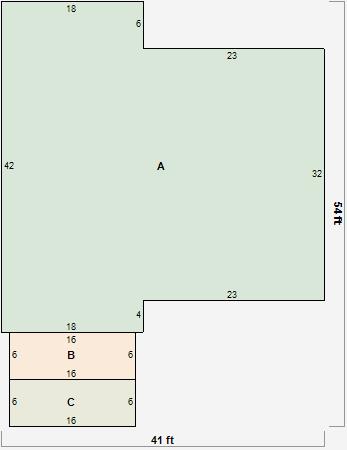
Parcel Sketches
Residential Card 1
A
MAIN
1492 square feet
B
EFP ENCL FRAME PORCH
96 square feet
C
WDDCK WOOD DECKS
96 square feet
Parcel Images
Please note:
this tab is for informational purposes only and may not show all delinquencies, see the Taxes tab for more accurate delinquent taxes due.