Elected Officials
Courts
Departments
Initiatives
Open Government
About
Login / Register
Home
/
Property & Tax Records
/
Property Records
/
Property & Tax Search
/
Parcel Profile
/
Print View
Search for Another Parcel
Parcel Profile
Historical Card
Sketches
Photos
Tax Map
Taxes
Print View
Print This Page
Address: 817 MYRTLE ST
Parcel: 16030015021600
Parcel Profile
Address
817 | MYRTLE | ST
Street Status
PAVED | SIDEWALK
School District
CITY OF ERIE SCHOOL
Acreage
0.0284
Classification
R
Land Use Code
SINGLE FAMILY
Legal Description
817 MYRTLE ST 30 X 41.25
Square Feet
1946
Topo
LEVEL
Utility
ALL PUBLIC
Zoning
Please contact your municipal zoning officer
Deed Book
1411
Deed Page
0718
2026 Tax Values
Land Value / Taxable
6,900 / 6,900.00
Building Value / Taxable
43,100 / 43,100.00
Total Value / Taxable
50,000 / 50,000.00
Clean & Green
Inactive
Homestead Status
Inactive
Farmstead Status
Inactive
Lerta Amount
0
Lerta Expiration Year
0
Residential Data
Card 1
Style
OLD STYLE
Basement
FULL
Year Built
1871
Exterior Wall
FRAME
Total Living Area
1946
Full Baths
1
Half Baths
1
Fuel Type
GAS
Heating
CENTRAL
Heating System
FORCED AIR
Stories
2.0
Total Bedrooms
3
Total Family Rooms
0
Total Rooms
6
Fireplaces
0
Other Buildings & Yards
No OBY Data Found
Sales History
Sale Date
Type
Price
Book / Page
Other Info
4/26/2007
LAND & BUILDING
0
1411 / 0718
DEED
2/21/2007
LAND & BUILDING
0
1396 / 0813
CORRECTIVE DEED
5/19/1998
0
0562 / 0728
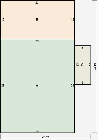
Parcel Sketches
Residential Card 1
A
MAIN
667 square feet
B
1S FR ONE STORY FRAME 1S FR ONE STORY FRAME
276 square feet
C
1S FR ONE STORY FRAME
60 square feet
Parcel Images
Please note:
this tab is for informational purposes only and may not show all delinquencies, see the Taxes tab for more accurate delinquent taxes due.