Elected Officials
Courts
Departments
Initiatives
Open Government
About
Login / Register
Home
/
Property & Tax Records
/
Property Records
/
Property & Tax Search
/
Parcel Profile
/
Print View
Search for Another Parcel
Parcel Profile
Historical Card
Sketches
Photos
Tax Map
Taxes
Print View
Print This Page
Address: 351 W 16 ST
Parcel: 16030016030900
Parcel Profile
Address
351 | W | 16 | ST
Street Status
PAVED
School District
CITY OF ERIE SCHOOL
Acreage
0.0321
Classification
R
Land Use Code
SINGLE FAMILY
Legal Description
351 W 16 ST 35X40
Square Feet
1201
Topo
LEVEL
Utility
ALL PUBLIC
Zoning
Please contact your municipal zoning officer
Deed Book
2015
Deed Page
022174
2026 Tax Values
Land Value / Taxable
7,000 / 7,000.00
Building Value / Taxable
30,960 / 30,960.00
Total Value / Taxable
37,960 / 37,960.00
Clean & Green
Inactive
Homestead Status
Active
Farmstead Status
Inactive
Lerta Amount
0
Lerta Expiration Year
0
Residential Data
Card 1
Style
OLD STYLE
Basement
FULL
Year Built
1882
Exterior Wall
ALUMINUM/VINYL
Total Living Area
1201
Full Baths
1
Half Baths
0
Fuel Type
GAS
Heating
CENTRAL
Heating System
FORCED AIR
Stories
1.5
Total Bedrooms
2
Total Family Rooms
0
Total Rooms
5
Fireplaces
0
Other Buildings & Yards
No OBY Data Found
Sales History
Sale Date
Type
Price
Book / Page
Other Info
10/5/2015
LAND & BUILDING
8500
2015 / 022174
SPECIAL WARRANTY DEED
5/3/2010
LAND & BUILDING
9000
2010 / 009781
FIDUCIARY DEED
3/5/1982
0
1449 / 0086
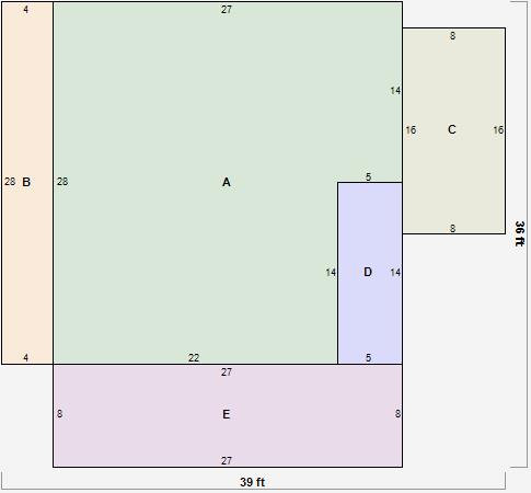
Parcel Sketches
Residential Card 1
A
MAIN
686 square feet
B
OFP OPEN FRAME PORCH
112 square feet
C
OFP OPEN FRAME PORCH
128 square feet
D
EFP ENCL FRAME PORCH
70 square feet
E
OFP OPEN FRAME PORCH
216 square feet
Parcel Images