Elected Officials
Courts
Departments
Initiatives
Open Government
About
Login / Register
Home
/
Property & Tax Records
/
Property Records
/
Property & Tax Search
/
Parcel Profile
/
Print View
Search for Another Parcel
Parcel Profile
Historical Card
Sketches
Photos
Tax Map
Taxes
Print View
Print This Page
Address: 1622 CHESTNUT ST
Parcel: 16030021020100
Parcel Profile
Address
1622 | CHESTNUT | ST
Street Status
PAVED
School District
CITY OF ERIE SCHOOL
Acreage
0.0675
Classification
R
Land Use Code
SINGLE FAMILY
Legal Description
1622 CHESTNUT ST 28X105
Square Feet
1645
Topo
LEVEL
Utility
ALL PUBLIC
Zoning
Please contact your municipal zoning officer
Deed Book
1380
Deed Page
0253
2025 Tax Values
Land Value / Taxable
8,000 / 8,000.00
Building Value / Taxable
13,900 / 13,900.00
Total Value / Taxable
21,900 / 21,900.00
Clean & Green
Inactive
Homestead Status
Inactive
Farmstead Status
Inactive
Lerta Amount
0
Lerta Expiration Year
0
Residential Data
Card 1
Style
OLD STYLE
Basement
FULL
Year Built
1887
Exterior Wall
COMPOSITION
Total Living Area
1645
Full Baths
1
Half Baths
0
Fuel Type
GAS
Heating
CENTRAL
Heating System
FORCED AIR
Stories
1.5
Total Bedrooms
3
Total Family Rooms
1
Total Rooms
8
Fireplaces
0
Other Buildings & Yards
No OBY Data Found
Sales History
Sale Date
Type
Price
Book / Page
Other Info
12/1/2006
LAND & BUILDING
10000
1380 / 0253
WARRANTY/SURVIVORSHIP DEED
8/10/1995
0
0397 / 1843
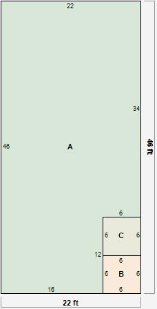
Parcel Sketches
Residential Card 1
A
MAIN
940 square feet
B
OFP OPEN FRAME PORCH
36 square feet
C
EFP ENCL FRAME PORCH
36 square feet
Parcel Images