Elected Officials
Courts
Departments
Initiatives
Open Government
About
Login / Register
Home
/
Property & Tax Records
/
Property Records
/
Property & Tax Search
/
Parcel Profile
/
Print View
Search for Another Parcel
Parcel Profile
Historical Card
Sketches
Photos
Tax Map
Taxes
Print View
Print This Page
Address: 434 W 10 ST
Parcel: 16030025013600
Parcel Profile
Address
434 | W | 10 | ST
Street Status
PAVED | SIDEWALK
School District
CITY OF ERIE SCHOOL
Acreage
0.2397
Classification
R
Land Use Code
SINGLE FAMILY
Legal Description
434 W 10 ST 63.27 X 165
Square Feet
4269
Topo
LEVEL
Utility
ALL PUBLIC
Zoning
Please contact your municipal zoning officer
Deed Book
0747
Deed Page
1180
2026 Tax Values
Land Value / Taxable
10,300 / 10,300.00
Building Value / Taxable
127,430 / 127,430.00
Total Value / Taxable
137,730 / 137,730.00
Clean & Green
Inactive
Homestead Status
Active
Farmstead Status
Inactive
Lerta Amount
0
Lerta Expiration Year
0
Residential Data
Card 1
Style
OLD STYLE
Basement
FULL
Year Built
1905
Exterior Wall
BRICK
Total Living Area
4269
Full Baths
3
Half Baths
1
Fuel Type
GAS
Heating
CENTRAL
Heating System
HOT WATER
Stories
2.0
Total Bedrooms
4
Total Family Rooms
0
Total Rooms
10
Fireplaces
2
Other Buildings & Yards
Description
Built
Width
Length
Area
FRAME OR CB DETACHED GARAGE
1916
20
22
440
1S LEAN TO
1990
12
18
216
Sales History
Sale Date
Type
Price
Book / Page
Other Info
1/11/2001
0
0747 / 1180
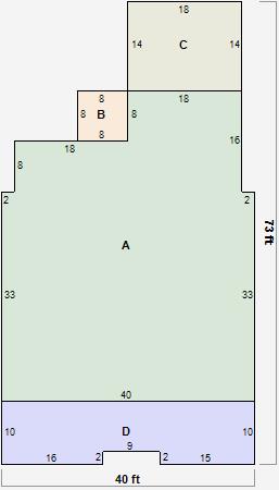
Parcel Sketches
Residential Card 1
A
MAIN
1752 square feet
B
UNFIN BSMT BASEMENT UNFINISHED 1S FR ONE STORY FRAME
64 square feet
C
OFP OPEN FRAME PORCH
252 square feet
D
EMP ENCL MASONRY PORCH
382 square feet
Parcel Images