Elected Officials
Courts
Departments
Initiatives
Open Government
About
Login / Register
Home
/
Property & Tax Records
/
Property Records
/
Property & Tax Search
/
Parcel Profile
/
Print View
Search for Another Parcel
Parcel Profile
Historical Card
Sketches
Photos
Tax Map
Taxes
Print View
Print This Page
Address: 826 CHESTNUT ST
Parcel: 16030025020100
Parcel Profile
Address
826 | CHESTNUT | ST
Street Status
PAVED | SIDEWALK
School District
CITY OF ERIE SCHOOL
Acreage
0.1148
Classification
R
Land Use Code
TWO FAMILY
Legal Description
826 CHESTNUT ST 40 X 125
Square Feet
2478
Topo
LEVEL
Utility
ALL PUBLIC
Zoning
Please contact your municipal zoning officer
Deed Book
2025
Deed Page
006188
2026 Tax Values
Land Value / Taxable
9,300 / 9,300.00
Building Value / Taxable
50,430 / 50,430.00
Total Value / Taxable
59,730 / 59,730.00
Clean & Green
Inactive
Homestead Status
Inactive
Farmstead Status
Inactive
Lerta Amount
0
Lerta Expiration Year
0
Residential Data
Card 1
Style
OLD STYLE
Basement
FULL
Year Built
1873
Exterior Wall
ALUMINUM/VINYL
Total Living Area
2478
Full Baths
2
Half Baths
0
Fuel Type
GAS
Heating
CENTRAL
Heating System
FORCED AIR
Stories
2.0
Total Bedrooms
4
Total Family Rooms
0
Total Rooms
9
Fireplaces
0
Other Buildings & Yards
No OBY Data Found
Sales History
Sale Date
Type
Price
Book / Page
Other Info
4/21/2025
LAND & BUILDING
1760000
2025 / 006188
SPECIAL WARRANTY DEED
9/9/1997
0
0517 / 1968
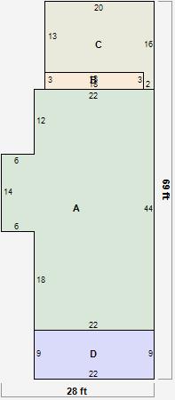
Parcel Sketches
Residential Card 1
A
MAIN
1052 square feet
B
1S FR ONE STORY FRAME 1S FR ONE STORY FRAME
54 square feet
C
1S FR ONE STORY FRAME
266 square feet
D
OFP OPEN FRAME PORCH OFP OPEN FRAME PORCH
198 square feet
Parcel Images