Elected Officials
Courts
Departments
Initiatives
Open Government
About
Login / Register
Home
/
Property & Tax Records
/
Property Records
/
Property & Tax Search
/
Parcel Profile
/
Print View
Search for Another Parcel
Parcel Profile
Historical Card
Sketches
Photos
Tax Map
Taxes
Print View
Print This Page
Address: 1701 CHERRY ST
Parcel: 16030026011900
Parcel Profile
Address
1701 | CHERRY | ST
Street Status
PAVED
School District
CITY OF ERIE SCHOOL
Acreage
0.0808
Classification
R
Land Use Code
TWO FAMILY
Legal Description
1701 CHERRY ST 44 X 80
Square Feet
2518
Topo
LEVEL
Utility
ALL PUBLIC
Zoning
Please contact your municipal zoning officer
Deed Book
2015
Deed Page
024641
2026 Tax Values
Land Value / Taxable
8,300 / 8,300.00
Building Value / Taxable
28,720 / 28,720.00
Total Value / Taxable
37,020 / 37,020.00
Clean & Green
Inactive
Homestead Status
Inactive
Farmstead Status
Inactive
Lerta Amount
0
Lerta Expiration Year
0
Residential Data
Card 1
Style
OLD STYLE
Basement
FULL
Year Built
1901
Exterior Wall
COMPOSITION
Total Living Area
2518
Full Baths
2
Half Baths
0
Fuel Type
GAS
Heating
CENTRAL
Heating System
FORCED AIR
Stories
2.0
Total Bedrooms
4
Total Family Rooms
1
Total Rooms
12
Fireplaces
0
Other Buildings & Yards
Description
Built
Width
Length
Area
BRICK OR STONE DETACHED GAR.
1910
12
20
240
Sales History
Sale Date
Type
Price
Book / Page
Other Info
11/3/2015
LAND & BUILDING
0
2015 / 024641
SPECIAL WARRANTY DEED
4/18/2013
LAND & BUILDING
22950
2013 / 009347
DEED
8/11/2003
LAND & BUILDING
30000
1048 / 1735
WARRANTY/SURVIVORSHIP DEED
10/24/1994
0
0359 / 1256
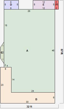
Parcel Sketches
Residential Card 1
A
MAIN
1250 square feet
B
OFP OPEN FRAME PORCH
264 square feet
C
FRBAY FRAME BAY
18 square feet
D
EFP ENCL FRAME PORCH
40 square feet
E
EFP ENCL FRAME PORCH EFP ENCL FRAME PORCH
60 square feet
F
EFP ENCL FRAME PORCH
10 square feet
Parcel Images
Please note:
this tab is for informational purposes only and may not show all delinquencies, see the Taxes tab for more accurate delinquent taxes due.