Elected Officials
Courts
Departments
Initiatives
Open Government
About
Login / Register
Home
/
Property & Tax Records
/
Property Records
/
Property & Tax Search
/
Parcel Profile
/
Print View
Search for Another Parcel
Parcel Profile
Historical Card
Sketches
Photos
Tax Map
Taxes
Print View
Print This Page
Address: 541 HURON ST
Parcel: 16030027011100
Parcel Profile
Address
541 | HURON | ST
Street Status
PAVED
School District
CITY OF ERIE SCHOOL
Acreage
0.0579
Classification
R
Land Use Code
TWO FAMILY
Legal Description
541 HURON ST 40X62.5
Square Feet
1320
Topo
LEVEL
Utility
ALL PUBLIC
Zoning
Please contact your municipal zoning officer
Deed Book
2022
Deed Page
001373
2026 Tax Values
Land Value / Taxable
7,700 / 7,700.00
Building Value / Taxable
32,130 / 32,130.00
Total Value / Taxable
39,830 / 39,830.00
Clean & Green
Inactive
Homestead Status
Inactive
Farmstead Status
Inactive
Lerta Amount
0
Lerta Expiration Year
0
Residential Data
Card 1
Style
CONVENTIONAL
Basement
FULL
Year Built
1907
Exterior Wall
FRAME
Total Living Area
1320
Full Baths
2
Half Baths
0
Fuel Type
GAS
Heating
CENTRAL
Heating System
FORCED AIR
Stories
1.0
Total Bedrooms
4
Total Family Rooms
0
Total Rooms
8
Fireplaces
0
Other Buildings & Yards
No OBY Data Found
Sales History
Sale Date
Type
Price
Book / Page
Other Info
1/20/2022
LAND & BUILDING
34500
2022 / 001373
SPECIAL WARRANTY DEED
11/18/2020
LAND & BUILDING
35000
2020 / 024903
SPECIAL WARRANTY DEED
7/21/2009
LAND & BUILDING
35000
1578 / 1346
DEED
11/5/2008
LAND & BUILDING
0
1530 / 0076
DEED
5/16/2008
LAND & BUILDING
20000
1495 / 1258
DEED
5/7/2007
LAND & BUILDING
19000
1414 / 0216
WARRANTY/SURVIVORSHIP DEED
4/21/1995
0
0380 / 0922
8/3/1992
LAND & BUILDING
0
0224 / 1347
4/5/1979
0
1343 / 0569
7/14/1960
0
0822 / 0467
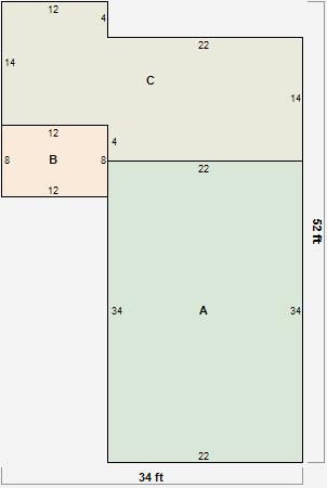
Parcel Sketches
Residential Card 1
A
MAIN
748 square feet
B
1S FR ONE STORY FRAME
96 square feet
C
UNFIN BSMT BASEMENT UNFINISHED 1S FR ONE STORY FRAME
476 square feet
Parcel Images
Please note:
this tab is for informational purposes only and may not show all delinquencies, see the Taxes tab for more accurate delinquent taxes due.