Elected Officials
Courts
Departments
Initiatives
Open Government
About
Login / Register
Home
/
Property & Tax Records
/
Property Records
/
Property & Tax Search
/
Parcel Profile
/
Print View
Search for Another Parcel
Parcel Profile
Historical Card
Sketches
Photos
Tax Map
Taxes
Print View
Print This Page
Address: 540 W 16 ST
Parcel: 16030027011900
Parcel Profile
Address
540 | W | 16 | ST
Street Status
PAVED
School District
CITY OF ERIE SCHOOL
Acreage
0.0579
Classification
R
Land Use Code
THREE FAMILY
Legal Description
540 W 16 ST 40X62.5
Square Feet
1830
Topo
LEVEL
Utility
ALL PUBLIC
Zoning
Please contact your municipal zoning officer
Deed Book
2021
Deed Page
021032
2026 Tax Values
Land Value / Taxable
7,700 / 7,700.00
Building Value / Taxable
32,560 / 32,560.00
Total Value / Taxable
40,260 / 40,260.00
Clean & Green
Inactive
Homestead Status
Inactive
Farmstead Status
Inactive
Lerta Amount
0
Lerta Expiration Year
0
Residential Data
Card 1
Style
CONVENTIONAL
Basement
FULL
Year Built
1887
Exterior Wall
ALUMINUM/VINYL
Total Living Area
1830
Full Baths
3
Half Baths
0
Fuel Type
GAS
Heating
CENTRAL
Heating System
FORCED AIR
Stories
2.0
Total Bedrooms
6
Total Family Rooms
0
Total Rooms
11
Fireplaces
0
Other Buildings & Yards
No OBY Data Found
Sales History
Sale Date
Type
Price
Book / Page
Other Info
8/6/2021
LAND & BUILDING
45000
2021 / 021032
DEED
9/21/1987
0
0028 / 0197
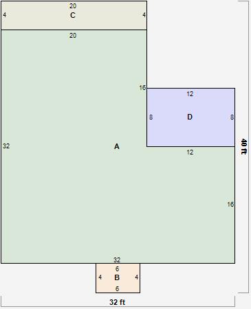
Parcel Sketches
Residential Card 1
A
MAIN
832 square feet
B
MA STOOP/TERR MAS STOOP
24 square feet
C
WDDCK WOOD DECKS
80 square feet
D
WDDCK WOOD DECKS
96 square feet
Parcel Images
Please note:
this tab is for informational purposes only and may not show all delinquencies, see the Taxes tab for more accurate delinquent taxes due.