Elected Officials
Courts
Departments
Initiatives
Open Government
About
Login / Register
Home
/
Property & Tax Records
/
Property Records
/
Property & Tax Search
/
Parcel Profile
/
Print View
Search for Another Parcel
Parcel Profile
Historical Card
Sketches
Photos
Tax Map
Taxes
Print View
Print This Page
Address: 505 W 9 ST
Parcel: 16030030010600
Parcel Profile
Address
505 | W | 9 | ST
Street Status
PAVED
School District
CITY OF ERIE SCHOOL
Acreage
0.0659
Classification
R
Land Use Code
SINGLE FAMILY
Legal Description
505 W 9 ST 41.25 X 70
Square Feet
1651
Topo
LEVEL
Utility
ALL PUBLIC
Zoning
Please contact your municipal zoning officer
Deed Book
2014
Deed Page
020762
2025 Tax Values
Land Value / Taxable
7,900 / 7,900.00
Building Value / Taxable
63,050 / 63,050.00
Total Value / Taxable
70,950 / 70,950.00
Clean & Green
Inactive
Homestead Status
Active
Farmstead Status
Inactive
Lerta Amount
0
Lerta Expiration Year
0
Residential Data
Card 1
Style
OLD STYLE
Basement
FULL
Year Built
1901
Exterior Wall
ALUMINUM/VINYL
Total Living Area
1651
Full Baths
1
Half Baths
1
Fuel Type
GAS
Heating
CENTRAL
Heating System
FORCED AIR
Stories
2.0
Total Bedrooms
5
Total Family Rooms
0
Total Rooms
11
Fireplaces
0
Other Buildings & Yards
No OBY Data Found
Sales History
Sale Date
Type
Price
Book / Page
Other Info
9/29/2014
LAND & BUILDING
28500
2014 / 020762
DEED
6/30/1994
0
0342 / 2014
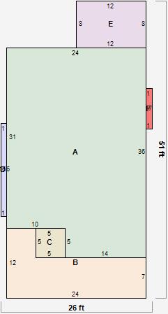
Parcel Sketches
Residential Card 1
A
MAIN
814 square feet
B
OFP OPEN FRAME PORCH
218 square feet
C
EFP ENCL FRAME PORCH
25 square feet
D
FROVR FRAME OVERHANG
16 square feet
E
EFP ENCL FRAME PORCH
96 square feet
F
FROVR FRAME OVERHANG
7 square feet
Parcel Images