Elected Officials
Courts
Departments
Initiatives
Open Government
About
Login / Register
Home
/
Property & Tax Records
/
Property Records
/
Property & Tax Search
/
Parcel Profile
/
Print View
Search for Another Parcel
Parcel Profile
Historical Card
Sketches
Photos
Tax Map
Taxes
Print View
Print This Page
Address: 537 W 9 ST
Parcel: 16030030011300
Parcel Profile
Address
537 | W | 9 | ST
Street Status
PAVED
School District
CITY OF ERIE SCHOOL
Acreage
0.1705
Classification
R
Land Use Code
SINGLE FAMILY
Legal Description
537 W 9 ST 45.25X165
Square Feet
3041
Topo
LEVEL
Utility
ALL PUBLIC
Zoning
Please contact your municipal zoning officer
Deed Book
2023
Deed Page
003640
2026 Tax Values
Land Value / Taxable
9,700 / 9,700.00
Building Value / Taxable
96,400 / 96,400.00
Total Value / Taxable
106,100 / 106,100.00
Clean & Green
Inactive
Homestead Status
Inactive
Farmstead Status
Inactive
Lerta Amount
0
Lerta Expiration Year
0
Residential Data
Card 1
Style
OLD STYLE
Basement
FULL
Year Built
1903
Exterior Wall
BRICK
Total Living Area
3041
Full Baths
2
Half Baths
0
Fuel Type
GAS
Heating
CENTRAL
Heating System
FORCED AIR
Stories
2.0
Total Bedrooms
6
Total Family Rooms
1
Total Rooms
9
Fireplaces
3
Other Buildings & Yards
Description
Built
Width
Length
Area
FRAME OR CB DETACHED GARAGE
1916
20
22
440
FRAME OR CB DETACHED GARAGE
1961
24
26
624
Sales History
Sale Date
Type
Price
Book / Page
Other Info
3/9/2023
LAND & BUILDING
0
2023 / 003640
SPECIAL WARRANTY DEED
9/8/1999
0
0661 / 0101
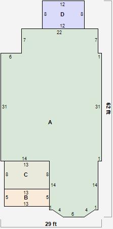
Parcel Sketches
Residential Card 1
A
MAIN
1267 square feet
B
EMP ENCL MASONRY PORCH OMP OPEN MASONRY PORCH
65 square feet
C
EMP ENCL MASONRY PORCH EMP ENCL MASONRY PORCH
104 square feet
D
OMP OPEN MASONRY PORCH
96 square feet
Parcel Images
Please note:
this tab is for informational purposes only and may not show all delinquencies, see the Taxes tab for more accurate delinquent taxes due.