Elected Officials
Courts
Departments
Initiatives
Open Government
About
Login / Register
Home
/
Property & Tax Records
/
Property Records
/
Property & Tax Search
/
Parcel Profile
/
Print View
Search for Another Parcel
Parcel Profile
Historical Card
Sketches
Photos
Tax Map
Taxes
Print View
Print This Page
Address: 659 W 10 ST
Parcel: 16030034022000
Parcel Profile
Address
659 | W | 10 | ST
Street Status
PAVED
School District
CITY OF ERIE SCHOOL
Acreage
0.1383
Classification
R
Land Use Code
SINGLE FAMILY
Legal Description
659 W 10 ST 36.5 X 165.26
Square Feet
1832
Topo
LEVEL
Utility
ALL PUBLIC
Zoning
Please contact your municipal zoning officer
Deed Book
1461
Deed Page
0873
2026 Tax Values
Land Value / Taxable
9,400 / 9,400.00
Building Value / Taxable
72,690 / 72,690.00
Total Value / Taxable
82,090 / 82,090.00
Clean & Green
Inactive
Homestead Status
Active
Farmstead Status
Inactive
Lerta Amount
0
Lerta Expiration Year
0
Residential Data
Card 1
Style
OLD STYLE
Basement
FULL
Year Built
1908
Exterior Wall
ALUMINUM/VINYL
Total Living Area
1832
Full Baths
1
Half Baths
1
Fuel Type
GAS
Heating
CENTRAL
Heating System
FORCED AIR
Stories
2.0
Total Bedrooms
4
Total Family Rooms
0
Total Rooms
8
Fireplaces
0
Other Buildings & Yards
Description
Built
Width
Length
Area
FRAME OR CB DETACHED GARAGE
1990
10
18
180
Sales History
Sale Date
Type
Price
Book / Page
Other Info
11/20/2007
LAND & BUILDING
73000
1461 / 0873
WARRANTY/SURVIVORSHIP DEED
4/9/2002
LAND & BUILDING
59900
869 / 1387
DEED
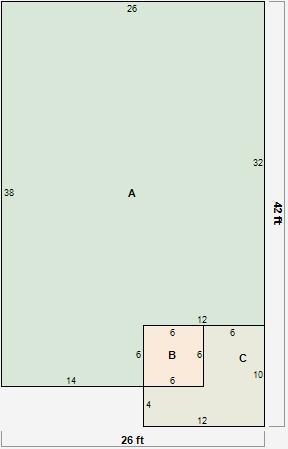
Parcel Sketches
Residential Card 1
A
MAIN
916 square feet
B
EFP ENCL FRAME PORCH
36 square feet
C
OFP OPEN FRAME PORCH
84 square feet
Parcel Images
Please note:
this tab is for informational purposes only and may not show all delinquencies, see the Taxes tab for more accurate delinquent taxes due.