Elected Officials
Courts
Departments
Initiatives
Open Government
About
Login / Register
Home
/
Property & Tax Records
/
Property Records
/
Property & Tax Search
/
Parcel Profile
/
Print View
Search for Another Parcel
Parcel Profile
Historical Card
Sketches
Photos
Tax Map
Taxes
Print View
Print This Page
Address: 907 POPLAR ST
Parcel: 16030035012200
Parcel Profile
Address
907 | POPLAR | ST
Street Status
PAVED
School District
CITY OF ERIE SCHOOL
Acreage
0.0568
Classification
R
Land Use Code
SINGLE FAMILY
Legal Description
907 POPLAR ST 41.25 X 60
Square Feet
1608
Topo
LEVEL
Utility
ALL PUBLIC
Zoning
Please contact your municipal zoning officer
Deed Book
2014
Deed Page
014356
2025 Tax Values
Land Value / Taxable
7,700 / 7,700.00
Building Value / Taxable
36,900 / 36,900.00
Total Value / Taxable
44,600 / 44,600.00
Clean & Green
Inactive
Homestead Status
Inactive
Farmstead Status
Inactive
Lerta Amount
0
Lerta Expiration Year
0
Residential Data
Card 1
Style
OLD STYLE
Basement
FULL
Year Built
1908
Exterior Wall
FRAME
Total Living Area
1608
Full Baths
1
Half Baths
0
Fuel Type
GAS
Heating
CENTRAL
Heating System
FORCED AIR
Stories
2.0
Total Bedrooms
4
Total Family Rooms
1
Total Rooms
8
Fireplaces
0
Other Buildings & Yards
No OBY Data Found
Sales History
Sale Date
Type
Price
Book / Page
Other Info
7/15/2014
LAND & BUILDING
0
2014 / 014356
SPECIAL WARRANTY DEED
6/13/2006
LAND & BUILDING
36500
1336 / 0487
WARRANTY/SURVIVORSHIP DEED
5/12/2003
LAND & BUILDING
38520
1010 / 841
DEED
9/6/1962
0
0863 / 0300
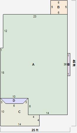
Parcel Sketches
Residential Card 1
A
MAIN
792 square feet
B
FR UT FRAME UTILITY BUILDING
30 square feet
C
OFP OPEN FRAME PORCH
100 square feet
D
FRBAY FRAME BAY
16 square feet
E
FRBAY FRAME BAY
8 square feet
Parcel Images