Elected Officials
Courts
Departments
Initiatives
Open Government
About
Login / Register
Home
/
Property & Tax Records
/
Property Records
/
Property & Tax Search
/
Parcel Profile
/
Print View
Search for Another Parcel
Parcel Profile
Historical Card
Sketches
Photos
Tax Map
Taxes
Print View
Print This Page
Address: 650 DOWNING CT
Parcel: 16030035022300
Parcel Profile
Address
650 | DOWNING | CT
Street Status
PAVED
School District
CITY OF ERIE SCHOOL
Acreage
0.0311
Classification
R
Land Use Code
SINGLE FAMILY
Legal Description
650 DOWNING COURT 33X41
Square Feet
1296
Topo
LEVEL
Utility
ALL PUBLIC
Zoning
Please contact your municipal zoning officer
Deed Book
2021
Deed Page
015430
2026 Tax Values
Land Value / Taxable
7,000 / 7,000.00
Building Value / Taxable
38,890 / 38,890.00
Total Value / Taxable
45,890 / 45,890.00
Clean & Green
Inactive
Homestead Status
Active
Farmstead Status
Inactive
Lerta Amount
0
Lerta Expiration Year
0
Residential Data
Card 1
Style
OLD STYLE
Basement
FULL
Year Built
1915
Exterior Wall
BRICK
Total Living Area
1296
Full Baths
1
Half Baths
0
Fuel Type
GAS
Heating
CENTRAL
Heating System
FORCED AIR
Stories
2.0
Total Bedrooms
3
Total Family Rooms
0
Total Rooms
6
Fireplaces
0
Other Buildings & Yards
No OBY Data Found
Sales History
Sale Date
Type
Price
Book / Page
Other Info
6/16/2021
LAND & BUILDING
0
2021 / 015430
FIDUCIARY DEED
2/23/2000
0
0688 / 1608
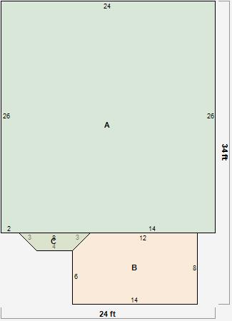
Parcel Sketches
Residential Card 1
A
MAIN
636 square feet
B
EMP ENCL MASONRY PORCH
110 square feet
C
UNFIN BSMT BASEMENT UNFINISHED MABAY MASONRY BAY MABAY MASONRY BAY
12 square feet
Parcel Images