Elected Officials
Courts
Departments
Initiatives
Open Government
About
Login / Register
Home
/
Property & Tax Records
/
Property Records
/
Property & Tax Search
/
Parcel Profile
/
Print View
Search for Another Parcel
Parcel Profile
Historical Card
Sketches
Photos
Tax Map
Taxes
Print View
Print This Page
Address: 642 DOWNING CT
Parcel: 16030035022500
Parcel Profile
Address
642 | DOWNING | CT
Street Status
PAVED
School District
CITY OF ERIE SCHOOL
Acreage
0.0311
Classification
R
Land Use Code
SINGLE FAMILY
Legal Description
642 DOWNING COURT 33X41
Square Feet
1373
Topo
LEVEL
Utility
ALL PUBLIC
Zoning
Please contact your municipal zoning officer
Deed Book
2010
Deed Page
011705
2026 Tax Values
Land Value / Taxable
7,000 / 7,000.00
Building Value / Taxable
35,700 / 35,700.00
Total Value / Taxable
42,700 / 42,700.00
Clean & Green
Inactive
Homestead Status
Inactive
Farmstead Status
Inactive
Lerta Amount
0
Lerta Expiration Year
0
Residential Data
Card 1
Style
OLD STYLE
Basement
FULL
Year Built
1915
Exterior Wall
BRICK
Total Living Area
1373
Full Baths
1
Half Baths
0
Fuel Type
GAS
Heating
CENTRAL
Heating System
FORCED AIR
Stories
2.0
Total Bedrooms
3
Total Family Rooms
0
Total Rooms
6
Fireplaces
1
Other Buildings & Yards
No OBY Data Found
Sales History
Sale Date
Type
Price
Book / Page
Other Info
5/24/2010
LAND & BUILDING
45000
2010 / 011705
DEED
6/28/2001
49000
787 / 1372
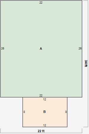
Parcel Sketches
Residential Card 1
A
MAIN
572 square feet
B
OMP OPEN MASONRY PORCH
96 square feet
Parcel Images
Please note:
this tab is for informational purposes only and may not show all delinquencies, see the Taxes tab for more accurate delinquent taxes due.