Elected Officials
Courts
Departments
Initiatives
Open Government
About
Login / Register
Home
/
Property & Tax Records
/
Property Records
/
Property & Tax Search
/
Parcel Profile
/
Print View
Search for Another Parcel
Parcel Profile
Historical Card
Sketches
Photos
Tax Map
Taxes
Print View
Print This Page
Address: 638 DOWNING CT
Parcel: 16030035022600
Parcel Profile
Address
638 | DOWNING | CT
Street Status
PAVED
School District
CITY OF ERIE SCHOOL
Acreage
0.0311
Classification
R
Land Use Code
SINGLE FAMILY
Legal Description
638 DOWNING COURT 33X41
Square Feet
1192
Topo
LEVEL
Utility
ALL PUBLIC
Zoning
Please contact your municipal zoning officer
Deed Book
0727
Deed Page
1142
2025 Tax Values
Land Value / Taxable
7,000 / 7,000.00
Building Value / Taxable
26,700 / 26,700.00
Total Value / Taxable
33,700 / 33,700.00
Clean & Green
Inactive
Homestead Status
Active
Farmstead Status
Inactive
Lerta Amount
0
Lerta Expiration Year
0
Residential Data
Card 1
Style
OLD STYLE
Basement
FULL
Year Built
1915
Exterior Wall
BRICK
Total Living Area
1192
Full Baths
1
Half Baths
0
Fuel Type
GAS
Heating
CENTRAL
Heating System
FORCED AIR
Stories
2.0
Total Bedrooms
3
Total Family Rooms
0
Total Rooms
6
Fireplaces
0
Other Buildings & Yards
No OBY Data Found
Sales History
Sale Date
Type
Price
Book / Page
Other Info
9/19/2000
LAND & BUILDING
15000
0727 / 1142
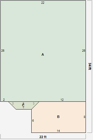
Parcel Sketches
Residential Card 1
A
MAIN
584 square feet
B
OMP OPEN MASONRY PORCH
110 square feet
C
UNFIN BSMT BASEMENT UNFINISHED MABAY MASONRY BAY MABAY MASONRY BAY
12 square feet
Parcel Images