Elected Officials
Courts
Departments
Initiatives
Open Government
About
Login / Register
Home
/
Property & Tax Records
/
Property Records
/
Property & Tax Search
/
Parcel Profile
/
Print View
Search for Another Parcel
Parcel Profile
Historical Card
Sketches
Photos
Tax Map
Taxes
Print View
Print This Page
Address: 645 DOWNING CT
Parcel: 16030035023200
Parcel Profile
Address
645 | DOWNING | CT
Street Status
PAVED
School District
CITY OF ERIE SCHOOL
Acreage
0.0311
Classification
R
Land Use Code
SINGLE FAMILY
Legal Description
645 DOWNING COURT 33 X 41
Square Feet
1192
Topo
LEVEL
Utility
ALL PUBLIC
Zoning
Please contact your municipal zoning officer
Deed Book
2022
Deed Page
021578
2026 Tax Values
Land Value / Taxable
7,000 / 7,000.00
Building Value / Taxable
52,520 / 52,520.00
Total Value / Taxable
59,520 / 59,520.00
Clean & Green
Inactive
Homestead Status
Active
Farmstead Status
Inactive
Lerta Amount
0
Lerta Expiration Year
0
Residential Data
Card 1
Style
OLD STYLE
Basement
FULL
Year Built
1915
Exterior Wall
BRICK
Total Living Area
1192
Full Baths
2
Half Baths
0
Fuel Type
GAS
Heating
CENTRAL A/C
Heating System
FORCED AIR
Stories
2.0
Total Bedrooms
3
Total Family Rooms
0
Total Rooms
6
Fireplaces
1
Other Buildings & Yards
No OBY Data Found
Sales History
Sale Date
Type
Price
Book / Page
Other Info
10/4/2022
LAND & BUILDING
71000
2022 / 021578
SPECIAL WARRANTY DEED
4/18/2013
LAND & BUILDING
47000
2013 / 009339
SPECIAL WARRANTY DEED
5/27/2005
LAND & BUILDING
58500
1237 / 1880
WARRANTY/SURVIVORSHIP DEED
3/30/1999
LAND & BUILDING
37900
626 / 1418
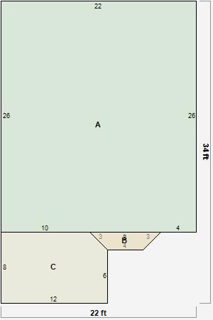
Parcel Sketches
Residential Card 1
A
MAIN
584 square feet
B
UNFIN BSMT BASEMENT UNFINISHED MABAY MASONRY BAY MABAY MASONRY BAY
12 square feet
C
OMP OPEN MASONRY PORCH
94 square feet
Parcel Images
Please note:
this tab is for informational purposes only and may not show all delinquencies, see the Taxes tab for more accurate delinquent taxes due.