Elected Officials
Courts
Departments
Initiatives
Open Government
About
Login / Register
Home
/
Property & Tax Records
/
Property Records
/
Property & Tax Search
/
Parcel Profile
/
Print View
Search for Another Parcel
Parcel Profile
Historical Card
Sketches
Photos
Tax Map
Taxes
Print View
Print This Page
Address: 659 DOWNING CT
Parcel: 16030035023600
Parcel Profile
Address
659 | DOWNING | CT
Street Status
PAVED
School District
CITY OF ERIE SCHOOL
Acreage
0.0273
Classification
R
Land Use Code
SINGLE FAMILY
Legal Description
659 DOWNING COURT 29X41
Square Feet
1144
Topo
LEVEL
Utility
ALL PUBLIC
Zoning
Please contact your municipal zoning officer
Deed Book
2025
Deed Page
000054
2026 Tax Values
Land Value / Taxable
6,900 / 6,900.00
Building Value / Taxable
36,750 / 36,750.00
Total Value / Taxable
43,650 / 43,650.00
Clean & Green
Inactive
Homestead Status
Active
Farmstead Status
Inactive
Lerta Amount
0
Lerta Expiration Year
0
Residential Data
Card 1
Style
OLD STYLE
Basement
FULL
Year Built
1915
Exterior Wall
BRICK
Total Living Area
1144
Full Baths
1
Half Baths
0
Fuel Type
GAS
Heating
CENTRAL
Heating System
FORCED AIR
Stories
2.0
Total Bedrooms
3
Total Family Rooms
0
Total Rooms
6
Fireplaces
0
Other Buildings & Yards
No OBY Data Found
Sales History
Sale Date
Type
Price
Book / Page
Other Info
1/2/2025
LAND & BUILDING
96000
2025 / 000054
FIDUCIARY DEED
1/12/2018
LAND & BUILDING
0
2018 / 000879
FIDUCIARY DEED
4/27/1989
0
0084 / 0920
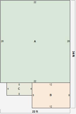
Parcel Sketches
Residential Card 1
A
MAIN
572 square feet
B
EMP ENCL MASONRY PORCH
96 square feet
C
OMP OPEN MASONRY PORCH
32 square feet
Parcel Images
Please note:
this tab is for informational purposes only and may not show all delinquencies, see the Taxes tab for more accurate delinquent taxes due.