Elected Officials
Courts
Departments
Initiatives
Open Government
About
Login / Register
Home
/
Property & Tax Records
/
Property Records
/
Property & Tax Search
/
Parcel Profile
/
Print View
Search for Another Parcel
Parcel Profile
Historical Card
Sketches
Photos
Tax Map
Taxes
Print View
Print This Page
Address: 719 W 16 ST
Parcel: 16030036021900
Parcel Profile
Address
719 | W | 16 | ST
Street Status
PAVED
School District
CITY OF ERIE SCHOOL
Acreage
0.0413
Classification
R
Land Use Code
TWO FAMILY
Legal Description
719 W 16 ST 40X45
Square Feet
1850
Topo
LEVEL
Utility
ALL PUBLIC
Zoning
Please contact your municipal zoning officer
Deed Book
2012
Deed Page
022630
2026 Tax Values
Land Value / Taxable
7,300 / 7,300.00
Building Value / Taxable
31,710 / 31,710.00
Total Value / Taxable
39,010 / 39,010.00
Clean & Green
Inactive
Homestead Status
Inactive
Farmstead Status
Inactive
Lerta Amount
0
Lerta Expiration Year
0
Residential Data
Card 1
Style
OLD STYLE
Basement
FULL
Year Built
1917
Exterior Wall
ALUMINUM/VINYL
Total Living Area
1850
Full Baths
2
Half Baths
0
Fuel Type
GAS
Heating
CENTRAL
Heating System
FORCED AIR
Stories
2.0
Total Bedrooms
4
Total Family Rooms
0
Total Rooms
8
Fireplaces
0
Other Buildings & Yards
No OBY Data Found
Sales History
Sale Date
Type
Price
Book / Page
Other Info
8/20/2012
LAND & BUILDING
32000
2012 / 022630
SPECIAL WARRANTY DEED
12/5/2003
LAND & BUILDING
0
1092 / 0841
WARRANTY/SURVIVORSHIP DEED
2/8/2002
LAND & BUILDING
22000
852 / 1394
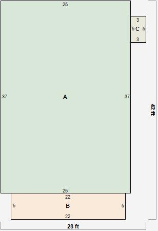
Parcel Sketches
Residential Card 1
A
MAIN
925 square feet
B
OFP OPEN FRAME PORCH OFP OPEN FRAME PORCH
110 square feet
C
OFP OPEN FRAME PORCH
15 square feet
Parcel Images
Please note:
this tab is for informational purposes only and may not show all delinquencies, see the Taxes tab for more accurate delinquent taxes due.