Elected Officials
Courts
Departments
Initiatives
Open Government
About
Login / Register
Home
/
Property & Tax Records
/
Property Records
/
Property & Tax Search
/
Parcel Profile
/
Print View
Search for Another Parcel
Parcel Profile
Historical Card
Sketches
Photos
Tax Map
Taxes
Print View
Print This Page
Address: 1516 POPLAR ST
Parcel: 16030037010300
Parcel Profile
Address
1516 | POPLAR | ST
Street Status
PAVED
School District
CITY OF ERIE SCHOOL
Acreage
0.1561
Classification
R
Land Use Code
SINGLE FAMILY
Legal Description
1516 POPLAR ST 41*25X165
Square Feet
1412
Topo
LEVEL
Utility
ALL PUBLIC
Zoning
Please contact your municipal zoning officer
Deed Book
0892
Deed Page
0519
2025 Tax Values
Land Value / Taxable
9,600 / 9,600.00
Building Value / Taxable
13,060 / 13,060.00
Total Value / Taxable
22,660 / 22,660.00
Clean & Green
Inactive
Homestead Status
Active
Farmstead Status
Inactive
Lerta Amount
0
Lerta Expiration Year
0
Residential Data
Card 1
Style
RANCH
Basement
FULL
Year Built
1887
Exterior Wall
ALUMINUM/VINYL
Total Living Area
1412
Full Baths
1
Half Baths
0
Fuel Type
GAS
Heating
CENTRAL
Heating System
FORCED AIR
Stories
1.0
Total Bedrooms
3
Total Family Rooms
0
Total Rooms
6
Fireplaces
0
Other Buildings & Yards
Description
Built
Width
Length
Area
BRICK OR STONE DETACHED GAR.
1930
11
21
231
Sales History
Sale Date
Type
Price
Book / Page
Other Info
6/20/2002
LAND & BUILDING
30500
0892 / 0519
1/1/1969
0
1413 / 0278
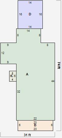
Parcel Sketches
Residential Card 1
A
MAIN
1188 square feet
B
OFP OPEN FRAME PORCH
120 square feet
C
MA STOOP/TERR MAS STOOP
24 square feet
D
1S FR ONE STORY FRAME
224 square feet
Parcel Images