Elected Officials
Courts
Departments
Initiatives
Open Government
About
Login / Register
Home
/
Property & Tax Records
/
Property Records
/
Property & Tax Search
/
Parcel Profile
/
Print View
Search for Another Parcel
Parcel Profile
Historical Card
Sketches
Photos
Tax Map
Taxes
Print View
Print This Page
Address: 707 W 10TH ST
Parcel: 16030039020500
Parcel Profile
Address
707 | W | 10TH | ST
Street Status
PAVED
School District
CITY OF ERIE SCHOOL
Acreage
0.1631
Classification
R
Land Use Code
TWO FAMILY
Legal Description
707 W 10TH ST 43 X 165.25
Square Feet
2490
Topo
LEVEL
Utility
ALL PUBLIC
Zoning
Please contact your municipal zoning officer
Deed Book
2014
Deed Page
002235
2026 Tax Values
Land Value / Taxable
9,700 / 9,700.00
Building Value / Taxable
64,500 / 64,500.00
Total Value / Taxable
74,200 / 74,200.00
Clean & Green
Inactive
Homestead Status
Inactive
Farmstead Status
Inactive
Lerta Amount
0
Lerta Expiration Year
0
Residential Data
Card 1
Style
OLD STYLE
Basement
FULL
Year Built
1895
Exterior Wall
ALUMINUM/VINYL
Total Living Area
2490
Full Baths
2
Half Baths
0
Fuel Type
GAS
Heating
CENTRAL
Heating System
FORCED AIR
Stories
2.0
Total Bedrooms
4
Total Family Rooms
0
Total Rooms
10
Fireplaces
0
Other Buildings & Yards
Description
Built
Width
Length
Area
FRAME OR CB DETACHED GARAGE
1910
18
20
360
Sales History
Sale Date
Type
Price
Book / Page
Other Info
2/4/2014
LAND & BUILDING
72000
2014 / 002235
WARRANTY/SURVIVORSHIP DEED
9/12/2001
LAND & BUILDING
69900
808 / 895
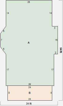
Parcel Sketches
Residential Card 1
A
MAIN
1245 square feet
B
OMP OPEN MASONRY PORCH
192 square feet
Parcel Images