Elected Officials
Courts
Departments
Initiatives
Open Government
About
Login / Register
Home
/
Property & Tax Records
/
Property Records
/
Property & Tax Search
/
Parcel Profile
/
Print View
Search for Another Parcel
Parcel Profile
Historical Card
Sketches
Photos
Tax Map
Taxes
Print View
Print This Page
Address: 916 POPLAR ST
Parcel: 16030040010200
Parcel Profile
Address
916 | POPLAR | ST
Street Status
PAVED
School District
CITY OF ERIE SCHOOL
Acreage
0.1515
Classification
R
Land Use Code
THREE FAMILY
Legal Description
916 POPLAR ST 40 X 165
Square Feet
3476
Topo
LEVEL
Utility
ALL PUBLIC
Zoning
Please contact your municipal zoning officer
Deed Book
1524
Deed Page
2285
2025 Tax Values
Land Value / Taxable
9,600 / 9,600.00
Building Value / Taxable
40,400 / 40,400.00
Total Value / Taxable
50,000 / 50,000.00
Clean & Green
Inactive
Homestead Status
Inactive
Farmstead Status
Inactive
Lerta Amount
0
Lerta Expiration Year
0
Residential Data
Card 1
Style
OLD STYLE
Basement
FULL
Year Built
1907
Exterior Wall
ALUMINUM/VINYL
Total Living Area
3476
Full Baths
3
Half Baths
0
Fuel Type
GAS
Heating
CENTRAL
Heating System
FORCED AIR
Stories
2.0
Total Bedrooms
6
Total Family Rooms
0
Total Rooms
14
Fireplaces
1
Other Buildings & Yards
No OBY Data Found
Sales History
Sale Date
Type
Price
Book / Page
Other Info
10/10/2008
LAND & BUILDING
68000
1524 / 2285
DEED
11/15/1990
0
0143 / 1530
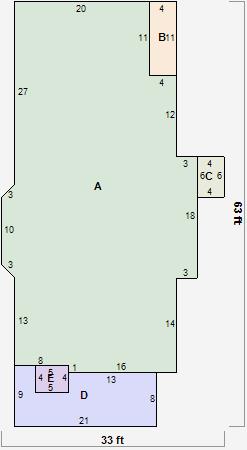
Parcel Sketches
Residential Card 1
A
MAIN
1346 square feet
B
UNFIN BSMT BASEMENT UNFINISHED OFP OPEN FRAME PORCH 1S FR ONE STORY FRAME AT UN ATTIC-UNFINISHED
44 square feet
C
WDDCK WOOD DECKS
24 square feet
D
OFP OPEN FRAME PORCH
176 square feet
E
EFP ENCL FRAME PORCH
20 square feet
Parcel Images