Elected Officials
Courts
Departments
Initiatives
Open Government
About
Login / Register
Home
/
Property & Tax Records
/
Property Records
/
Property & Tax Search
/
Parcel Profile
/
Print View
Search for Another Parcel
Parcel Profile
Historical Card
Sketches
Photos
Tax Map
Taxes
Print View
Print This Page
Address: 810 POPLAR ST
Parcel: 16030040020400
Parcel Profile
Address
810 | POPLAR | ST
Street Status
PAVED
School District
CITY OF ERIE SCHOOL
Acreage
0.0781
Classification
R
Land Use Code
SINGLE FAMILY
Legal Description
810 POPLAR ST 41.25 X 82.5
Square Feet
2362
Topo
LEVEL
Utility
ALL PUBLIC
Zoning
Please contact your municipal zoning officer
Deed Book
2023
Deed Page
017302
2026 Tax Values
Land Value / Taxable
8,300 / 8,300.00
Building Value / Taxable
36,700 / 36,700.00
Total Value / Taxable
45,000 / 45,000.00
Clean & Green
Inactive
Homestead Status
Inactive
Farmstead Status
Inactive
Lerta Amount
0
Lerta Expiration Year
0
Residential Data
Card 1
Style
OLD STYLE
Basement
FULL
Year Built
1907
Exterior Wall
COMPOSITION
Total Living Area
2362
Full Baths
1
Half Baths
0
Fuel Type
GAS
Heating
CENTRAL
Heating System
FORCED AIR
Stories
2.0
Total Bedrooms
4
Total Family Rooms
1
Total Rooms
9
Fireplaces
0
Other Buildings & Yards
No OBY Data Found
Sales History
Sale Date
Type
Price
Book / Page
Other Info
10/11/2023
LAND & BUILDING
85000
2023 / 017302
DEEDS
4/16/2009
LAND & BUILDING
31400
1555 / 1426
DEED
9/10/2008
LAND & BUILDING
0
1519 / 2189
SHERIFF'S DED
12/1/2003
LAND & BUILDING
0
1090 / 2108
QUIT CLAIM DEED
7/11/2001
LAND & BUILDING
62500
791 / 882
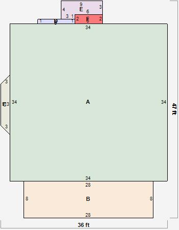
Parcel Sketches
Residential Card 1
A
MAIN
1156 square feet
B
OFP OPEN FRAME PORCH
224 square feet
C
FRBAY FRAME BAY
22 square feet
D
FRBAY FRAME BAY FRBAY FRAME BAY
8 square feet
E
FR UT FRAME UTILITY BUILDING
30 square feet
F
FR UT FRAME UTILITY BUILDING FRBAY FRAME BAY
12 square feet
Parcel Images
Please note:
this tab is for informational purposes only and may not show all delinquencies, see the Taxes tab for more accurate delinquent taxes due.