Elected Officials
Courts
Departments
Initiatives
Open Government
About
Login / Register
Home
/
Property & Tax Records
/
Property Records
/
Property & Tax Search
/
Parcel Profile
/
Print View
Search for Another Parcel
Parcel Profile
Historical Card
Sketches
Photos
Tax Map
Taxes
Print View
Print This Page
Address: 807 W 9 ST
Parcel: 16030042010400
Parcel Profile
Address
807 | W | 9 | ST
Street Status
PAVED
School District
CITY OF ERIE SCHOOL
Acreage
0.1421
Classification
R
Land Use Code
SINGLE FAMILY
Legal Description
807 W 9TH ST 82.5 X 75
Square Feet
2840
Topo
LEVEL
Utility
ALL PUBLIC
Zoning
Please contact your municipal zoning officer
Deed Book
2016
Deed Page
012320
2026 Tax Values
Land Value / Taxable
9,000 / 9,000.00
Building Value / Taxable
51,000 / 51,000.00
Total Value / Taxable
60,000 / 60,000.00
Clean & Green
Inactive
Homestead Status
Inactive
Farmstead Status
Inactive
Lerta Amount
0
Lerta Expiration Year
0
Residential Data
Card 1
Style
OLD STYLE
Basement
FULL
Year Built
1902
Exterior Wall
FRAME
Total Living Area
2840
Full Baths
1
Half Baths
0
Fuel Type
GAS
Heating
CENTRAL
Heating System
FORCED AIR
Stories
2.0
Total Bedrooms
4
Total Family Rooms
0
Total Rooms
11
Fireplaces
1
Other Buildings & Yards
No OBY Data Found
Sales History
Sale Date
Type
Price
Book / Page
Other Info
6/16/2016
LAND & BUILDING
26000
2016 / 012320
DEED
3/14/2016
LAND & BUILDING
2027
2016 / 005021
SHERIFF'S DED
9/22/2004
LAND & BUILDING
0
1175 / 0583
DEED
11/13/1995
0
0412 / 1305
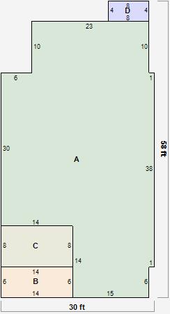
Parcel Sketches
Residential Card 1
A
MAIN
1348 square feet
B
OFP OPEN FRAME PORCH
84 square feet
C
OFP OPEN FRAME PORCH 1S FR ONE STORY FRAME
112 square feet
D
FROVR FRAME OVERHANG
32 square feet
Parcel Images
Please note:
this tab is for informational purposes only and may not show all delinquencies, see the Taxes tab for more accurate delinquent taxes due.