Elected Officials
Courts
Departments
Initiatives
Open Government
About
Login / Register
Home
/
Property & Tax Records
/
Property Records
/
Property & Tax Search
/
Parcel Profile
/
Print View
Search for Another Parcel
Parcel Profile
Historical Card
Sketches
Photos
Tax Map
Taxes
Print View
Print This Page
Address: 1711 CASCADE ST
Parcel: 16030043012200
Parcel Profile
Address
1711 | CASCADE | ST
Street Status
PAVED
School District
CITY OF ERIE SCHOOL
Acreage
0.0489
Classification
R
Land Use Code
SINGLE FAMILY
Legal Description
1711 CASCADE ST 28 X 76
Square Feet
741
Topo
LEVEL
Utility
ALL PUBLIC
Zoning
Please contact your municipal zoning officer
Deed Book
1619
Deed Page
0322
2026 Tax Values
Land Value / Taxable
7,500 / 7,500.00
Building Value / Taxable
22,600 / 22,600.00
Total Value / Taxable
30,100 / 30,100.00
Clean & Green
Inactive
Homestead Status
Active
Farmstead Status
Inactive
Lerta Amount
0
Lerta Expiration Year
0
Residential Data
Card 1
Style
BUNGALOW
Basement
FULL
Year Built
1882
Exterior Wall
ALUMINUM/VINYL
Total Living Area
741
Full Baths
1
Half Baths
0
Fuel Type
GAS
Heating
CENTRAL
Heating System
FORCED AIR
Stories
1.0
Total Bedrooms
1
Total Family Rooms
1
Total Rooms
4
Fireplaces
0
Other Buildings & Yards
No OBY Data Found
Sales History
Sale Date
Type
Price
Book / Page
Other Info
2/24/1986
0
1619 / 0322
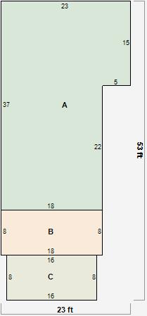
Parcel Sketches
Residential Card 1
A
MAIN
741 square feet
B
EFP ENCL FRAME PORCH
144 square feet
C
WDDCK WOOD DECKS
128 square feet
Parcel Images
Please note:
this tab is for informational purposes only and may not show all delinquencies, see the Taxes tab for more accurate delinquent taxes due.