Elected Officials
Courts
Departments
Initiatives
Open Government
About
Login / Register
Home
/
Property & Tax Records
/
Property Records
/
Property & Tax Search
/
Parcel Profile
/
Print View
Search for Another Parcel
Parcel Profile
Historical Card
Sketches
Photos
Tax Map
Taxes
Print View
Print This Page
Address: 902 W 17 ST
Parcel: 16030043020000
Parcel Profile
Address
902 | W | 17 | ST
Street Status
PAVED
School District
CITY OF ERIE SCHOOL
Acreage
0.0759
Classification
R
Land Use Code
TWO FAMILY
Legal Description
902 W 17 ST 51.5 X 64.5
Square Feet
2080
Topo
LEVEL
Utility
ALL PUBLIC
Zoning
Please contact your municipal zoning officer
Deed Book
2021
Deed Page
018141
2026 Tax Values
Land Value / Taxable
8,200 / 8,200.00
Building Value / Taxable
16,610 / 16,610.00
Total Value / Taxable
24,810 / 24,810.00
Clean & Green
Inactive
Homestead Status
Inactive
Farmstead Status
Inactive
Lerta Amount
0
Lerta Expiration Year
0
Residential Data
Card 1
Style
OLD STYLE
Basement
FULL
Year Built
1897
Exterior Wall
BRICK
Total Living Area
2080
Full Baths
2
Half Baths
0
Fuel Type
GAS
Heating
CENTRAL
Heating System
HOT WATER
Stories
2.0
Total Bedrooms
4
Total Family Rooms
0
Total Rooms
10
Fireplaces
0
Other Buildings & Yards
No OBY Data Found
Sales History
Sale Date
Type
Price
Book / Page
Other Info
7/13/2021
LAND & BUILDING
20000
2021 / 018141
SPECIAL WARRANTY DEED
8/29/2018
LAND & BUILDING
20000
2018 / 017838
SPECIAL WARRANTY DEED
1/31/2003
LAND & BUILDING
23500
972 / 437
1/31/2002
LAND & BUILDING
19500
843 / 2249
1/31/2002
0
0849 / 2249
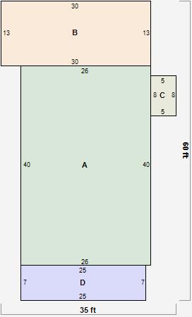
Parcel Sketches
Residential Card 1
A
MAIN
1040 square feet
B
MG/BG MASONRY/BRICK GARAGE
390 square feet
C
OMP OPEN MASONRY PORCH
40 square feet
D
OFP OPEN FRAME PORCH
175 square feet
Parcel Images
Please note:
this tab is for informational purposes only and may not show all delinquencies, see the Taxes tab for more accurate delinquent taxes due.