Elected Officials
Courts
Departments
Initiatives
Open Government
About
Login / Register
Home
/
Property & Tax Records
/
Property Records
/
Property & Tax Search
/
Parcel Profile
/
Print View
Search for Another Parcel
Parcel Profile
Historical Card
Sketches
Photos
Tax Map
Taxes
Print View
Print This Page
Address: 915 W 16 ST
Parcel: 16030043020600
Parcel Profile
Address
915 | W | 16 | ST
Street Status
PAVED
School District
CITY OF ERIE SCHOOL
Acreage
0.0367
Classification
R
Land Use Code
SINGLE FAMILY
Legal Description
915 W 16TH ST 40X40
Square Feet
1604
Topo
LEVEL
Utility
ALL PUBLIC
Zoning
Please contact your municipal zoning officer
Deed Book
2019
Deed Page
015843
2026 Tax Values
Land Value / Taxable
7,100 / 7,100.00
Building Value / Taxable
32,740 / 32,740.00
Total Value / Taxable
39,840 / 39,840.00
Clean & Green
Inactive
Homestead Status
Active
Farmstead Status
Inactive
Lerta Amount
0
Lerta Expiration Year
0
Residential Data
Card 1
Style
OLD STYLE
Basement
FULL
Year Built
1907
Exterior Wall
COMPOSITION
Total Living Area
1604
Full Baths
1
Half Baths
1
Fuel Type
GAS
Heating
NON CENTRAL
Heating System
NONE
Stories
2.0
Total Bedrooms
3
Total Family Rooms
0
Total Rooms
8
Fireplaces
0
Other Buildings & Yards
No OBY Data Found
Sales History
Sale Date
Type
Price
Book / Page
Other Info
8/13/2019
LAND & BUILDING
20000
2019 / 015843
SPECIAL WARRANTY DEED
11/6/2006
LAND & BUILDING
26000
1374 / 0882
WARRANTY/SURVIVORSHIP DEED
3/4/1986
0
1620 / 0298
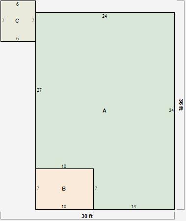
Parcel Sketches
Residential Card 1
A
MAIN
746 square feet
B
OFP OPEN FRAME PORCH 1S FR ONE STORY FRAME AT UN ATTIC-UNFINISHED
70 square feet
C
1S FR ONE STORY FRAME
42 square feet
Parcel Images
Please note:
this tab is for informational purposes only and may not show all delinquencies, see the Taxes tab for more accurate delinquent taxes due.