Elected Officials
Courts
Departments
Initiatives
Open Government
About
Login / Register
Home
/
Property & Tax Records
/
Property Records
/
Property & Tax Search
/
Parcel Profile
/
Print View
Search for Another Parcel
Parcel Profile
Historical Card
Sketches
Photos
Tax Map
Taxes
Print View
Print This Page
Address: 946 W 17 ST
Parcel: 16030043022300
Parcel Profile
Address
946 | W | 17 | ST
Street Status
PAVED
School District
CITY OF ERIE SCHOOL
Acreage
0.1365
Classification
R
Land Use Code
TWO FAMILY
Legal Description
946 W 17 ST 44.87X132.5
Square Feet
2324
Topo
LEVEL
Utility
ALL PUBLIC
Zoning
Please contact your municipal zoning officer
Deed Book
2026
Deed Page
008151
2026 Tax Values
Land Value / Taxable
9,400 / 9,400.00
Building Value / Taxable
36,250 / 36,250.00
Total Value / Taxable
45,650 / 45,650.00
Clean & Green
Inactive
Homestead Status
Inactive
Farmstead Status
Inactive
Lerta Amount
0
Lerta Expiration Year
0
Residential Data
Card 1
Style
OLD STYLE
Basement
FULL
Year Built
1917
Exterior Wall
ALUMINUM/VINYL
Total Living Area
2324
Full Baths
2
Half Baths
0
Fuel Type
GAS
Heating
CENTRAL
Heating System
FORCED AIR
Stories
2.0
Total Bedrooms
7
Total Family Rooms
0
Total Rooms
13
Fireplaces
0
Other Buildings & Yards
No OBY Data Found
Sales History
Sale Date
Type
Price
Book / Page
Other Info
5/15/2026
LAND & BUILDING
72000
2026 / 008151
SPECIAL WARRANTY DEED
2/25/2022
LAND & BUILDING
89900
2022 / 004158
SPECIAL WARRANTY DEED
5/13/2021
LAND & BUILDING
3000
2021 / 012071
QUIT CLAIM DEED
2/15/2019
LAND & BUILDING
0
2019 / 002781
TAX DEED
4/1/2011
LAND & BUILDING
15000
2011 / 007518
SPECIAL WARRANTY DEED
11/24/2010
LAND & BUILDING
15000
2010 / 029595
SPECIAL WARRANTY DEED
2/11/2009
LAND & BUILDING
0
1543 / 0125
QUIT CLAIM DEED
11/9/2004
LAND & BUILDING
36000
1188 / 1182
DEED
7/23/1999
LAND & BUILDING
40000
651 / 535
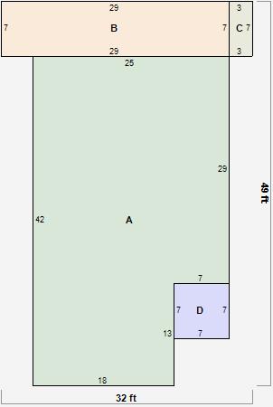
Parcel Sketches
Residential Card 1
A
MAIN
959 square feet
B
UNFIN BSMT BASEMENT UNFINISHED 1S FR ONE STORY FRAME 1S FR ONE STORY FRAME
203 square feet
C
CANPY CANOPY
21 square feet
D
EFP ENCL FRAME PORCH
49 square feet
Parcel Images
Please note:
this tab is for informational purposes only and may not show all delinquencies, see the Taxes tab for more accurate delinquent taxes due.