Elected Officials
Courts
Departments
Initiatives
Open Government
About
Login / Register
Home
/
Property & Tax Records
/
Property Records
/
Property & Tax Search
/
Parcel Profile
/
Print View
Search for Another Parcel
Parcel Profile
Historical Card
Sketches
Photos
Tax Map
Taxes
Print View
Print This Page
Address: 930 W 16 ST
Parcel: 16030044011900
Parcel Profile
Address
930 | W | 16 | ST
Street Status
PAVED
School District
CITY OF ERIE SCHOOL
Acreage
0.2891
Classification
R
Land Use Code
SINGLE FAMILY
Legal Description
930 W 16 ST 76.33 X 165
Square Feet
1932
Topo
LEVEL
Utility
ALL PUBLIC
Zoning
Please contact your municipal zoning officer
Deed Book
2021
Deed Page
009436
2026 Tax Values
Land Value / Taxable
10,700 / 10,700.00
Building Value / Taxable
39,040 / 39,040.00
Total Value / Taxable
49,740 / 49,740.00
Clean & Green
Inactive
Homestead Status
Active
Farmstead Status
Inactive
Lerta Amount
0
Lerta Expiration Year
0
Residential Data
Card 1
Style
OLD STYLE
Basement
FULL
Year Built
1882
Exterior Wall
COMPOSITION
Total Living Area
1932
Full Baths
1
Half Baths
1
Fuel Type
GAS
Heating
CENTRAL
Heating System
FORCED AIR
Stories
2.0
Total Bedrooms
5
Total Family Rooms
1
Total Rooms
11
Fireplaces
0
Other Buildings & Yards
Description
Built
Width
Length
Area
FRAME OR CB DETACHED GARAGE
1947
36
34
1224
Sales History
Sale Date
Type
Price
Book / Page
Other Info
4/8/2021
LAND & BUILDING
16000
2021 / 009436
SPECIAL WARRANTY DEED
4/5/2013
LAND & BUILDING
17000
2013 / 007999
WARRANTY/SURVIVORSHIP DEED
9/8/2009
LAND & BUILDING
15000
1588 / 2003
QUIT CLAIM DEED
4/28/2009
LAND & BUILDING
10000
1557 / 1797
DEED
10/20/2008
LAND & BUILDING
0
1526 / 1815
DEED
9/12/2008
LAND & BUILDING
0
1520 / 1074
SHERIFF'S DED
5/14/2001
LAND & BUILDING
43000
774 / 435
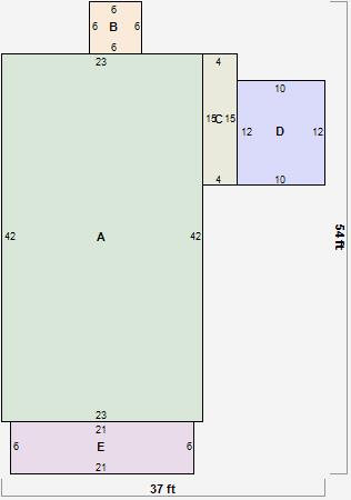
Parcel Sketches
Residential Card 1
A
MAIN
966 square feet
B
WDDCK WOOD DECKS
36 square feet
C
EFP ENCL FRAME PORCH
60 square feet
D
MA_PT CONC/MAS PATIO
120 square feet
E
EFP ENCL FRAME PORCH
126 square feet
Parcel Images
Please note:
this tab is for informational purposes only and may not show all delinquencies, see the Taxes tab for more accurate delinquent taxes due.