Elected Officials
Courts
Departments
Initiatives
Open Government
About
Login / Register
Home
/
Property & Tax Records
/
Property Records
/
Property & Tax Search
/
Parcel Profile
/
Print View
Search for Another Parcel
Parcel Profile
Historical Card
Sketches
Photos
Tax Map
Taxes
Print View
Print This Page
Address: 1018 PLUM ST
Parcel: 16030046020400
Parcel Profile
Address
1018 | PLUM | ST
Street Status
PAVED
School District
CITY OF ERIE SCHOOL
Acreage
0.1172
Classification
R
Land Use Code
SINGLE FAMILY
Legal Description
1018 PLUM ST 41.25 X 123.75
Square Feet
1732
Topo
LEVEL
Utility
ALL PUBLIC
Zoning
Please contact your municipal zoning officer
Deed Book
2021
Deed Page
018522
2025 Tax Values
Land Value / Taxable
9,300 / 9,300.00
Building Value / Taxable
86,685 / 86,685.00
Total Value / Taxable
95,985 / 95,985.00
Clean & Green
Inactive
Homestead Status
Active
Farmstead Status
Inactive
Lerta Amount
0
Lerta Expiration Year
0
Residential Data
Card 1
Style
OLD STYLE
Basement
FULL
Year Built
1903
Exterior Wall
COMPOSITION
Total Living Area
1732
Full Baths
1
Half Baths
0
Fuel Type
GAS
Heating
CENTRAL
Heating System
FORCED AIR
Stories
2.0
Total Bedrooms
4
Total Family Rooms
0
Total Rooms
8
Fireplaces
0
Other Buildings & Yards
Description
Built
Width
Length
Area
FRAME OR CB DETACHED GARAGE
1916
12
33
396
Sales History
Sale Date
Type
Price
Book / Page
Other Info
7/14/2021
LAND & BUILDING
135000
2021 / 018522
SPECIAL WARRANTY DEED
3/23/2020
LAND & BUILDING
9900
2020 / 005564
SPECIAL WARRANTY DEED
2/18/2020
LAND & BUILDING
0
2020 / 3162
SHERIFF'S DED
6/2/1999
LAND & BUILDING
40000
640 / 627
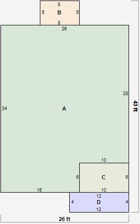
Parcel Sketches
Residential Card 1
A
MAIN
824 square feet
B
EFP ENCL FRAME PORCH
40 square feet
C
OFP OPEN FRAME PORCH 1S FR ONE STORY FRAME AT FN ATTIC-FINISHED
60 square feet
D
OFP OPEN FRAME PORCH
48 square feet
Parcel Images