Elected Officials
Courts
Departments
Initiatives
Open Government
About
Login / Register
Home
/
Property & Tax Records
/
Property Records
/
Property & Tax Search
/
Parcel Profile
/
Print View
Search for Another Parcel
Parcel Profile
Historical Card
Sketches
Photos
Tax Map
Taxes
Print View
Print This Page
Address: 1010 PLUM ST
Parcel: 16030046020600
Parcel Profile
Address
1010 | PLUM | ST
Street Status
PAVED
School District
CITY OF ERIE SCHOOL
Acreage
0.0407
Classification
R
Land Use Code
SINGLE FAMILY
Legal Description
1010 PLUM ST 42.5 X 41.25
Square Feet
1240
Topo
LEVEL
Utility
ALL PUBLIC
Zoning
Please contact your municipal zoning officer
Deed Book
1398
Deed Page
0520
2026 Tax Values
Land Value / Taxable
7,300 / 7,300.00
Building Value / Taxable
30,660 / 30,660.00
Total Value / Taxable
37,960 / 37,960.00
Clean & Green
Inactive
Homestead Status
Active
Farmstead Status
Inactive
Lerta Amount
0
Lerta Expiration Year
0
Residential Data
Card 1
Style
OLD STYLE
Basement
FULL
Year Built
1904
Exterior Wall
ALUMINUM/VINYL
Total Living Area
1240
Full Baths
1
Half Baths
0
Fuel Type
GAS
Heating
CENTRAL
Heating System
FORCED AIR
Stories
2.0
Total Bedrooms
3
Total Family Rooms
0
Total Rooms
6
Fireplaces
0
Other Buildings & Yards
No OBY Data Found
Sales History
Sale Date
Type
Price
Book / Page
Other Info
9/23/1980
0
1398 / 0520
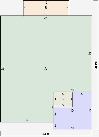
Parcel Sketches
Residential Card 1
A
MAIN
592 square feet
B
1S FR ONE STORY FRAME
48 square feet
C
EFP ENCL FRAME PORCH AT FN ATTIC-FINISHED
20 square feet
D
OFP OPEN FRAME PORCH
80 square feet
Parcel Images
Please note:
this tab is for informational purposes only and may not show all delinquencies, see the Taxes tab for more accurate delinquent taxes due.