Elected Officials
Courts
Departments
Initiatives
Open Government
About
Login / Register
Home
/
Property & Tax Records
/
Property Records
/
Property & Tax Search
/
Parcel Profile
/
Print View
Search for Another Parcel
Parcel Profile
Historical Card
Sketches
Photos
Tax Map
Taxes
Print View
Print This Page
Address: 1006 PLUM ST
Parcel: 16030046020700
Parcel Profile
Address
1006 | PLUM | ST
Street Status
PAVED
School District
CITY OF ERIE SCHOOL
Acreage
0.0379
Classification
R
Land Use Code
TWO FAMILY
Legal Description
1006 PLUM ST 40 X 41.25
Square Feet
1392
Topo
LEVEL
Utility
ALL PUBLIC
Zoning
Please contact your municipal zoning officer
Deed Book
2014
Deed Page
004298
2025 Tax Values
Land Value / Taxable
7,200 / 7,200.00
Building Value / Taxable
40,900 / 40,900.00
Total Value / Taxable
48,100 / 48,100.00
Clean & Green
Inactive
Homestead Status
Inactive
Farmstead Status
Inactive
Lerta Amount
0
Lerta Expiration Year
0
Residential Data
Card 1
Style
OLD STYLE
Basement
FULL
Year Built
1904
Exterior Wall
ALUMINUM/VINYL
Total Living Area
1392
Full Baths
2
Half Baths
0
Fuel Type
GAS
Heating
CENTRAL
Heating System
FORCED AIR
Stories
2.0
Total Bedrooms
4
Total Family Rooms
0
Total Rooms
7
Fireplaces
0
Other Buildings & Yards
No OBY Data Found
Sales History
Sale Date
Type
Price
Book / Page
Other Info
3/10/2014
LAND & BUILDING
25100
2014 / 004298
SPECIAL WARRANTY DEED
7/11/2013
LAND & BUILDING
2791
2013 / 017703
SHERIFF'S DED
1/4/2007
LAND & BUILDING
52500
1387 / 0481
SPECIAL WARRANTY DEED
1/2/1998
0
0536 / 1591
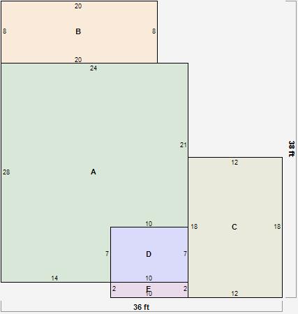
Parcel Sketches
Residential Card 1
A
MAIN
602 square feet
B
1S FR ONE STORY FRAME
160 square feet
C
FR GR FRAME GARAGE
216 square feet
D
OFP OPEN FRAME PORCH AT FN ATTIC-FINISHED
70 square feet
E
OFP OPEN FRAME PORCH
20 square feet
Parcel Images