Elected Officials
Courts
Departments
Initiatives
Open Government
About
Login / Register
Home
/
Property & Tax Records
/
Property Records
/
Property & Tax Search
/
Parcel Profile
/
Print View
Search for Another Parcel
Parcel Profile
Historical Card
Sketches
Photos
Tax Map
Taxes
Print View
Print This Page
Address: 932 W 11TH ST
Parcel: 16030046024000
Parcel Profile
Address
932 | W | 11TH | ST
Street Status
PAVED
School District
CITY OF ERIE SCHOOL
Acreage
0.1562
Classification
R
Land Use Code
SINGLE FAMILY
Legal Description
932 W 11TH ST 41*25X165
Square Feet
1462
Topo
LEVEL
Utility
ALL PUBLIC
Zoning
Please contact your municipal zoning officer
Deed Book
1539
Deed Page
1200
2026 Tax Values
Land Value / Taxable
9,600 / 9,600.00
Building Value / Taxable
30,270 / 30,270.00
Total Value / Taxable
39,870 / 39,870.00
Clean & Green
Inactive
Homestead Status
Inactive
Farmstead Status
Inactive
Lerta Amount
0.00
Lerta Expiration Year
2014
Residential Data
Card 1
Style
OLD STYLE
Basement
FULL
Year Built
1892
Exterior Wall
COMPOSITION
Total Living Area
1462
Full Baths
1
Half Baths
0
Fuel Type
GAS
Heating
CENTRAL
Heating System
FORCED AIR
Stories
1.5
Total Bedrooms
3
Total Family Rooms
0
Total Rooms
8
Fireplaces
0
Other Buildings & Yards
No OBY Data Found
Sales History
Sale Date
Type
Price
Book / Page
Other Info
1/14/2009
LAND & BUILDING
23000
1539 / 1200
SPECIAL WARRANTY DEED
2/13/1994
0
1568 / 0551
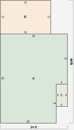
Parcel Sketches
Residential Card 1
A
MAIN
712 square feet
B
1S FR ONE STORY FRAME
216 square feet
C
OFP OPEN FRAME PORCH
32 square feet
Parcel Images
Please note:
this tab is for informational purposes only and may not show all delinquencies, see the Taxes tab for more accurate delinquent taxes due.