Elected Officials
Courts
Departments
Initiatives
Open Government
About
Login / Register
Home
/
Property & Tax Records
/
Property Records
/
Property & Tax Search
/
Parcel Profile
/
Print View
Search for Another Parcel
Parcel Profile
Historical Card
Sketches
Photos
Tax Map
Taxes
Print View
Print This Page
Address: 963 W 9 ST
Parcel: 16030047012200
Parcel Profile
Address
963 | W | 9 | ST
Street Status
PAVED
School District
CITY OF ERIE SCHOOL
Acreage
0.0659
Classification
R
Land Use Code
SINGLE FAMILY
Legal Description
963 W 9 ST 41.25 X 70
Square Feet
1664
Topo
LEVEL
Utility
ALL PUBLIC
Zoning
Please contact your municipal zoning officer
Deed Book
1448
Deed Page
0325
2026 Tax Values
Land Value / Taxable
7,900 / 7,900.00
Building Value / Taxable
57,740 / 57,740.00
Total Value / Taxable
65,640 / 65,640.00
Clean & Green
Inactive
Homestead Status
Active
Farmstead Status
Inactive
Lerta Amount
0
Lerta Expiration Year
0
Residential Data
Card 1
Style
OLD STYLE
Basement
FULL
Year Built
1900
Exterior Wall
ALUMINUM/VINYL
Total Living Area
1664
Full Baths
1
Half Baths
0
Fuel Type
GAS
Heating
CENTRAL
Heating System
FORCED AIR
Stories
2.0
Total Bedrooms
4
Total Family Rooms
1
Total Rooms
10
Fireplaces
0
Other Buildings & Yards
No OBY Data Found
Sales History
Sale Date
Type
Price
Book / Page
Other Info
9/19/2007
LAND & BUILDING
68000
1448 / 0325
DEED
5/16/2007
LAND & BUILDING
68000
1416 / 0725
DEED
11/27/2002
LAND & BUILDING
26500
951 / 48
1/29/1992
0
0193 / 0391
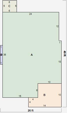
Parcel Sketches
Residential Card 1
A
MAIN
828 square feet
B
OFP OPEN FRAME PORCH
116 square feet
C
EFP ENCL FRAME PORCH
30 square feet
D
FRBAY FRAME BAY
8 square feet
Parcel Images