Elected Officials
Courts
Departments
Initiatives
Open Government
About
Login / Register
Home
/
Property & Tax Records
/
Property Records
/
Property & Tax Search
/
Parcel Profile
/
Print View
Search for Another Parcel
Parcel Profile
Historical Card
Sketches
Photos
Tax Map
Taxes
Print View
Print This Page
Address: 962 W 10 ST
Parcel: 16030047012900
Parcel Profile
Address
962 | W | 10 | ST
Street Status
PAVED
School District
CITY OF ERIE SCHOOL
Acreage
0.0659
Classification
R
Land Use Code
SINGLE FAMILY
Legal Description
962 W 10TH ST 41.25 X 70
Square Feet
1884
Topo
LEVEL
Utility
ALL PUBLIC
Zoning
Please contact your municipal zoning officer
Deed Book
1316
Deed Page
0972
2026 Tax Values
Land Value / Taxable
7,900 / 7,900.00
Building Value / Taxable
69,940 / 69,940.00
Total Value / Taxable
77,840 / 77,840.00
Clean & Green
Inactive
Homestead Status
Active
Farmstead Status
Inactive
Lerta Amount
0
Lerta Expiration Year
0
Residential Data
Card 1
Style
OLD STYLE
Basement
FULL
Year Built
1905
Exterior Wall
ALUMINUM/VINYL
Total Living Area
1884
Full Baths
1
Half Baths
1
Fuel Type
GAS
Heating
CENTRAL
Heating System
FORCED AIR
Stories
2.0
Total Bedrooms
4
Total Family Rooms
0
Total Rooms
10
Fireplaces
0
Other Buildings & Yards
Description
Built
Width
Length
Area
FRAME OR CB DETACHED GARAGE
1926
12
18
216
Sales History
Sale Date
Type
Price
Book / Page
Other Info
3/31/2006
LAND & BUILDING
86000
1316 / 0972
WARRANTY/SURVIVORSHIP DEED
11/5/2003
LAND & BUILDING
69900
1083 / 2127
DEED
2/20/1967
LAND & BUILDING
9900
0955 / 0515
DEED
6/18/1965
0
0918 / 0354
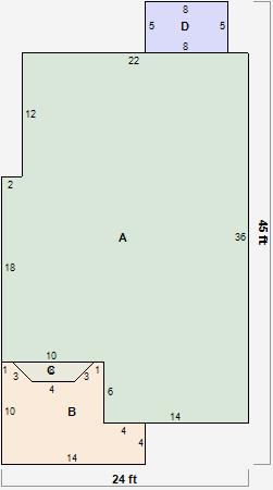
Parcel Sketches
Residential Card 1
A
MAIN
780 square feet
B
EFP ENCL FRAME PORCH
104 square feet
C
FRBAY FRAME BAY
12 square feet
D
FR UT FRAME UTILITY BUILDING
40 square feet
Parcel Images