Elected Officials
Courts
Departments
Initiatives
Open Government
About
Login / Register
Home
/
Property & Tax Records
/
Property Records
/
Property & Tax Search
/
Parcel Profile
/
Print View
Search for Another Parcel
Parcel Profile
Historical Card
Sketches
Photos
Tax Map
Taxes
Print View
Print This Page
Address: 1108 CASCADE ST
Parcel: 16030051010500
Parcel Profile
Address
1108 | CASCADE | ST
Street Status
PAVED
School District
CITY OF ERIE SCHOOL
Acreage
0.0551
Classification
R
Land Use Code
SINGLE FAMILY
Legal Description
1108 CASCADE ST 30 X 80
Square Feet
1448
Topo
LEVEL
Utility
ALL PUBLIC
Zoning
Please contact your municipal zoning officer
Deed Book
2022
Deed Page
026325
2026 Tax Values
Land Value / Taxable
7,600 / 7,600.00
Building Value / Taxable
41,700 / 41,700.00
Total Value / Taxable
49,300 / 49,300.00
Clean & Green
Inactive
Homestead Status
Active
Farmstead Status
Inactive
Lerta Amount
0
Lerta Expiration Year
0
Residential Data
Card 1
Style
OLD STYLE
Basement
FULL
Year Built
1902
Exterior Wall
ALUMINUM/VINYL
Total Living Area
1448
Full Baths
2
Half Baths
0
Fuel Type
GAS
Heating
CENTRAL
Heating System
HOT WATER
Stories
2.0
Total Bedrooms
4
Total Family Rooms
0
Total Rooms
7
Fireplaces
0
Other Buildings & Yards
Description
Built
Width
Length
Area
FRAME UTILITY SHED
1988
8
24
192
Sales History
Sale Date
Type
Price
Book / Page
Other Info
12/19/2022
LAND & BUILDING
112000
2022 / 026325
SPECIAL WARRANTY DEED
5/2/2012
LAND & BUILDING
1000
2012 / 011011
SPECIAL WARRANTY DEED
10/27/1965
0
0927 / 0578
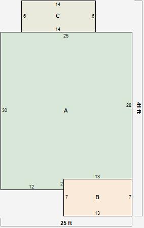
Parcel Sketches
Residential Card 1
A
MAIN
724 square feet
B
EFP ENCL FRAME PORCH
91 square feet
C
EFP ENCL FRAME PORCH
84 square feet
Parcel Images