Elected Officials
Courts
Departments
Initiatives
Open Government
About
Login / Register
Home
/
Property & Tax Records
/
Property Records
/
Property & Tax Search
/
Parcel Profile
/
Print View
Search for Another Parcel
Parcel Profile
Historical Card
Sketches
Photos
Tax Map
Taxes
Print View
Print This Page
Address: 1015 W 11 ST
Parcel: 16030051011100
Parcel Profile
Address
1015 | W | 11 | ST
Street Status
PAVED
School District
CITY OF ERIE SCHOOL
Acreage
0.0643
Classification
R
Land Use Code
SINGLE FAMILY
Legal Description
1015 W 11 ST 27.5 X 100
Square Feet
970
Topo
LEVEL
Utility
ALL PUBLIC
Zoning
Please contact your municipal zoning officer
Deed Book
2021
Deed Page
018871
2025 Tax Values
Land Value / Taxable
7,900 / 7,900.00
Building Value / Taxable
22,100 / 22,100.00
Total Value / Taxable
30,000 / 30,000.00
Clean & Green
Inactive
Homestead Status
Active
Farmstead Status
Inactive
Lerta Amount
0
Lerta Expiration Year
0
Residential Data
Card 1
Style
BUNGALOW
Basement
FULL
Year Built
1902
Exterior Wall
ALUMINUM/VINYL
Total Living Area
970
Full Baths
1
Half Baths
0
Fuel Type
GAS
Heating
CENTRAL
Heating System
FORCED AIR
Stories
1.0
Total Bedrooms
3
Total Family Rooms
0
Total Rooms
6
Fireplaces
0
Other Buildings & Yards
No OBY Data Found
Sales History
Sale Date
Type
Price
Book / Page
Other Info
7/16/2021
LAND & BUILDING
20000
2021 / 018871
SPECIAL WARRANTY DEED
12/7/2001
LAND & BUILDING
18900
0832 / 1621
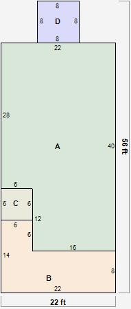
Parcel Sketches
Residential Card 1
A
MAIN
808 square feet
B
OFP OPEN FRAME PORCH
212 square feet
C
EFP ENCL FRAME PORCH
36 square feet
D
UNFIN BSMT BASEMENT UNFINISHED EFP ENCL FRAME PORCH
64 square feet
Parcel Images