Elected Officials
Courts
Departments
Initiatives
Open Government
About
Login / Register
Home
/
Property & Tax Records
/
Property Records
/
Property & Tax Search
/
Parcel Profile
/
Print View
Search for Another Parcel
Parcel Profile
Historical Card
Sketches
Photos
Tax Map
Taxes
Print View
Print This Page
Address: 1055 W 10 ST
Parcel: 16030051022200
Parcel Profile
Address
1055 | W | 10 | ST
Street Status
PAVED
School District
CITY OF ERIE SCHOOL
Acreage
0.1089
Classification
R
Land Use Code
THREE FAMILY
Legal Description
1055 W 10 ST 41.25 X 200
Square Feet
1944
Topo
LEVEL
Utility
ALL PUBLIC
Zoning
Please contact your municipal zoning officer
Deed Book
2024
Deed Page
008813
2026 Tax Values
Land Value / Taxable
9,100 / 9,100.00
Building Value / Taxable
67,400 / 67,400.00
Total Value / Taxable
76,500 / 76,500.00
Clean & Green
Inactive
Homestead Status
Inactive
Farmstead Status
Inactive
Lerta Amount
0
Lerta Expiration Year
0
Residential Data
Card 1
Style
OLD STYLE
Basement
FULL
Year Built
1910
Exterior Wall
ALUMINUM/VINYL
Total Living Area
1944
Full Baths
3
Half Baths
2
Fuel Type
GAS
Heating
CENTRAL
Heating System
FORCED AIR
Stories
2.0
Total Bedrooms
5
Total Family Rooms
0
Total Rooms
9
Fireplaces
0
Other Buildings & Yards
Description
Built
Width
Length
Area
FRAME OR CB DETACHED GARAGE
1910
16
24
384
Sales History
Sale Date
Type
Price
Book / Page
Other Info
6/11/2024
LAND & BUILDING
0
2024 / 008813
FIDUCIARY DEED
8/22/1975
0
1168 / 0044
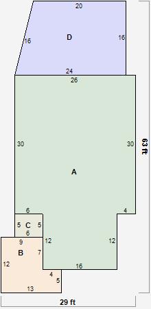
Parcel Sketches
Residential Card 1
A
MAIN
972 square feet
B
OFP OPEN FRAME PORCH
128 square feet
C
EFP ENCL FRAME PORCH
30 square feet
D
OFP OPEN FRAME PORCH WDDCK WOOD DECKS
352 square feet
Parcel Images
Please note:
this tab is for informational purposes only and may not show all delinquencies, see the Taxes tab for more accurate delinquent taxes due.