Elected Officials
Courts
Departments
Initiatives
Open Government
About
Login / Register
Home
/
Property & Tax Records
/
Property Records
/
Property & Tax Search
/
Parcel Profile
/
Print View
Search for Another Parcel
Parcel Profile
Historical Card
Sketches
Photos
Tax Map
Taxes
Print View
Print This Page
Address: 1057 W 10 ST
Parcel: 16030051022300
Parcel Profile
Address
1057 | W | 10 | ST
Street Status
PAVED
School District
CITY OF ERIE SCHOOL
Acreage
0.0857
Classification
R
Land Use Code
SINGLE FAMILY
Legal Description
1057 W 10 ST 41.5 X 90
Square Feet
2056
Topo
LEVEL
Utility
ALL PUBLIC
Zoning
Please contact your municipal zoning officer
Deed Book
2011
Deed Page
000836
2026 Tax Values
Land Value / Taxable
8,500 / 8,500.00
Building Value / Taxable
96,370 / 96,370.00
Total Value / Taxable
104,870 / 104,870.00
Clean & Green
Inactive
Homestead Status
Active
Farmstead Status
Inactive
Lerta Amount
0
Lerta Expiration Year
0
Residential Data
Card 1
Style
OLD STYLE
Basement
FULL
Year Built
1907
Exterior Wall
ALUMINUM/VINYL
Total Living Area
2056
Full Baths
2
Half Baths
0
Fuel Type
GAS
Heating
CENTRAL
Heating System
FORCED AIR
Stories
2.0
Total Bedrooms
4
Total Family Rooms
0
Total Rooms
7
Fireplaces
0
Other Buildings & Yards
Description
Built
Width
Length
Area
FRAME OR CB DETACHED GARAGE
1916
18
18
324
Sales History
Sale Date
Type
Price
Book / Page
Other Info
1/10/2011
LAND & BUILDING
120000
2011 / 000836
DEED
12/27/1996
0
0477 / 2005
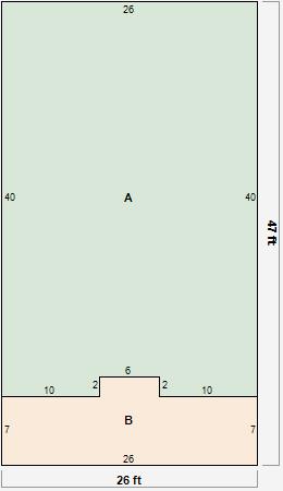
Parcel Sketches
Residential Card 1
A
MAIN
1028 square feet
B
OFP OPEN FRAME PORCH
194 square feet
Parcel Images
Please note:
this tab is for informational purposes only and may not show all delinquencies, see the Taxes tab for more accurate delinquent taxes due.