Elected Officials
Courts
Departments
Initiatives
Open Government
About
Login / Register
Home
/
Property & Tax Records
/
Property Records
/
Property & Tax Search
/
Parcel Profile
/
Print View
Search for Another Parcel
Parcel Profile
Historical Card
Sketches
Photos
Tax Map
Taxes
Print View
Print This Page
Address: 1052 W 11 ST
Parcel: 16030051023300
Parcel Profile
Address
1052 | W | 11 | ST
Street Status
PAVED
School District
CITY OF ERIE SCHOOL
Acreage
0.0985
Classification
R
Land Use Code
SINGLE FAMILY
Legal Description
1052 W 11 ST 33 X 130
Square Feet
1322
Topo
LEVEL
Utility
ALL PUBLIC
Zoning
Please contact your municipal zoning officer
Deed Book
1571
Deed Page
0314
2026 Tax Values
Land Value / Taxable
8,800 / 8,800.00
Building Value / Taxable
32,600 / 32,600.00
Total Value / Taxable
41,400 / 41,400.00
Clean & Green
Inactive
Homestead Status
Inactive
Farmstead Status
Inactive
Lerta Amount
0
Lerta Expiration Year
0
Residential Data
Card 1
Style
OLD STYLE
Basement
FULL
Year Built
1895
Exterior Wall
ALUMINUM/VINYL
Total Living Area
1322
Full Baths
1
Half Baths
0
Fuel Type
GAS
Heating
CENTRAL
Heating System
FORCED AIR
Stories
1.5
Total Bedrooms
3
Total Family Rooms
1
Total Rooms
8
Fireplaces
0
Other Buildings & Yards
Description
Built
Width
Length
Area
FRAME OR CB DETACHED GARAGE
1910
9
16
144
Sales History
Sale Date
Type
Price
Book / Page
Other Info
6/23/2009
LAND & BUILDING
0
1571 / 0314
QUIT CLAIM DEED
1/1/1960
0
817 / 222
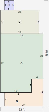
Parcel Sketches
Residential Card 1
A
MAIN
618 square feet
B
OFP OPEN FRAME PORCH
182 square feet
C
UNFIN BSMT BASEMENT UNFINISHED 1S FR ONE STORY FRAME
240 square feet
D
WDDCK WOOD DECKS
25 square feet
Parcel Images
Please note:
this tab is for informational purposes only and may not show all delinquencies, see the Taxes tab for more accurate delinquent taxes due.