Elected Officials
Courts
Departments
Initiatives
Open Government
About
Login / Register
Home
/
Property & Tax Records
/
Property Records
/
Property & Tax Search
/
Parcel Profile
/
Print View
Search for Another Parcel
Parcel Profile
Historical Card
Sketches
Photos
Tax Map
Taxes
Print View
Print This Page
Address: 817 RASPBERRY ST
Parcel: 16030052021900
Parcel Profile
Address
817 | RASPBERRY | ST
Street Status
PAVED
School District
CITY OF ERIE SCHOOL
Acreage
0.0854
Classification
R
Land Use Code
TWO FAMILY
Legal Description
817 RASPBERRY ST LOT A 45 X 82.5
Square Feet
1530
Topo
LEVEL
Utility
ALL PUBLIC
Zoning
Please contact your municipal zoning officer
Deed Book
2017
Deed Page
013740
2026 Tax Values
Land Value / Taxable
10,280 / 10,280.00
Building Value / Taxable
33,220 / 33,220.00
Total Value / Taxable
43,500 / 43,500.00
Clean & Green
Inactive
Homestead Status
Inactive
Farmstead Status
Inactive
Lerta Amount
0
Lerta Expiration Year
0
Residential Data
Card 1
Style
OLD STYLE
Basement
FULL
Year Built
1907
Exterior Wall
COMPOSITION
Total Living Area
1530
Full Baths
2
Half Baths
0
Fuel Type
GAS
Heating
CENTRAL
Heating System
FORCED AIR
Stories
2.0
Total Bedrooms
2
Total Family Rooms
0
Total Rooms
8
Fireplaces
0
Other Buildings & Yards
No OBY Data Found
Sales History
Sale Date
Type
Price
Book / Page
Other Info
6/30/2017
LAND & BUILDING
37700
2017 / 013740
DEED
11/12/2014
LAND & BUILDING
0
2014 / 024294
QUIT CLAIM DEED
11/30/2009
LAND & BUILDING
40000
1606 / 0253
SPECIAL WARRANTY DEED
3/1/2000
LAND & BUILDING
39500
689 / 2027
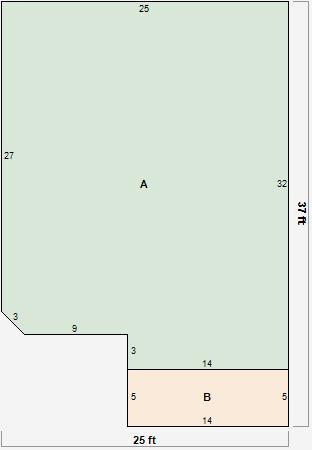
Parcel Sketches
Residential Card 1
A
MAIN
765 square feet
B
OFP OPEN FRAME PORCH
70 square feet
Parcel Images
Please note:
this tab is for informational purposes only and may not show all delinquencies, see the Taxes tab for more accurate delinquent taxes due.