Elected Officials
Courts
Departments
Initiatives
Open Government
About
Login / Register
Home
/
Property & Tax Records
/
Property Records
/
Property & Tax Search
/
Parcel Profile
/
Print View
Search for Another Parcel
Parcel Profile
Historical Card
Sketches
Photos
Tax Map
Taxes
Print View
Print This Page
Address: 823 RASPBERRY ST
Parcel: 16030052022100
Parcel Profile
Address
823 | RASPBERRY | ST
Street Status
PAVED
School District
CITY OF ERIE SCHOOL
Acreage
0.0854
Classification
R
Land Use Code
SINGLE FAMILY
Legal Description
823 RASPBERRY ST 45 X 82.5
Square Feet
1572
Topo
LEVEL
Utility
ALL PUBLIC
Zoning
Please contact your municipal zoning officer
Deed Book
1110
Deed Page
0080
2026 Tax Values
Land Value / Taxable
10,280 / 10,280.00
Building Value / Taxable
57,510 / 57,510.00
Total Value / Taxable
67,790 / 67,790.00
Clean & Green
Inactive
Homestead Status
Active
Farmstead Status
Inactive
Lerta Amount
0
Lerta Expiration Year
0
Residential Data
Card 1
Style
OLD STYLE
Basement
FULL
Year Built
1907
Exterior Wall
ALUMINUM/VINYL
Total Living Area
1572
Full Baths
2
Half Baths
0
Fuel Type
GAS
Heating
CENTRAL
Heating System
FORCED AIR
Stories
2.0
Total Bedrooms
4
Total Family Rooms
0
Total Rooms
8
Fireplaces
0
Other Buildings & Yards
Description
Built
Width
Length
Area
FRAME OR CB DETACHED GARAGE
1916
10
18
180
Sales History
Sale Date
Type
Price
Book / Page
Other Info
11/26/1973
0
1110 / 0080
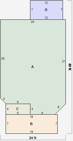
Parcel Sketches
Residential Card 1
A
MAIN
786 square feet
B
OFP OPEN FRAME PORCH
133 square feet
C
EFP ENCL FRAME PORCH
36 square feet
D
EFP ENCL FRAME PORCH
84 square feet
Parcel Images
Please note:
this tab is for informational purposes only and may not show all delinquencies, see the Taxes tab for more accurate delinquent taxes due.