Elected Officials
Courts
Departments
Initiatives
Open Government
About
Login / Register
Home
/
Property & Tax Records
/
Property Records
/
Property & Tax Search
/
Parcel Profile
/
Print View
Search for Another Parcel
Parcel Profile
Historical Card
Sketches
Photos
Tax Map
Taxes
Print View
Print This Page
Address: 1117 W 11 ST
Parcel: 16030056010900
Parcel Profile
Address
1117 | W | 11 | ST
Street Status
PAVED
School District
CITY OF ERIE SCHOOL
Acreage
0.1136
Classification
R
Land Use Code
SINGLE FAMILY
Legal Description
1117 W 11 ST 30 X 165
Square Feet
1320
Topo
LEVEL
Utility
ALL PUBLIC
Zoning
Please contact your municipal zoning officer
Deed Book
0455
Deed Page
2140
2026 Tax Values
Land Value / Taxable
9,200 / 9,200.00
Building Value / Taxable
43,220 / 43,220.00
Total Value / Taxable
52,420 / 52,420.00
Clean & Green
Inactive
Homestead Status
Active
Farmstead Status
Inactive
Lerta Amount
0
Lerta Expiration Year
0
Residential Data
Card 1
Style
OLD STYLE
Basement
FULL
Year Built
1914
Exterior Wall
COMPOSITION
Total Living Area
1320
Full Baths
1
Half Baths
0
Fuel Type
GAS
Heating
CENTRAL
Heating System
FORCED AIR
Stories
2.0
Total Bedrooms
4
Total Family Rooms
0
Total Rooms
8
Fireplaces
0
Other Buildings & Yards
No OBY Data Found
Sales History
Sale Date
Type
Price
Book / Page
Other Info
8/14/1996
0
0455 / 2140
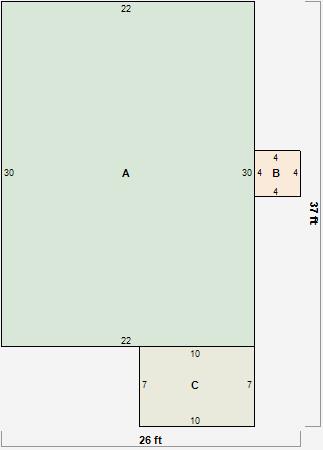
Parcel Sketches
Residential Card 1
A
MAIN
660 square feet
B
OFP OPEN FRAME PORCH
16 square feet
C
OFP OPEN FRAME PORCH
70 square feet
Parcel Images
Please note:
this tab is for informational purposes only and may not show all delinquencies, see the Taxes tab for more accurate delinquent taxes due.