Elected Officials
Courts
Departments
Initiatives
Open Government
About
Login / Register
Home
/
Property & Tax Records
/
Property Records
/
Property & Tax Search
/
Parcel Profile
/
Print View
Search for Another Parcel
Parcel Profile
Historical Card
Sketches
Photos
Tax Map
Taxes
Print View
Print This Page
Address: 1143 W 10 ST
Parcel: 16030056021900
Parcel Profile
Address
1143 | W | 10 | ST
Street Status
PAVED
School District
CITY OF ERIE SCHOOL
Acreage
0.1562
Classification
R
Land Use Code
SINGLE FAMILY
Legal Description
1143 W 10 ST 41.25X165
Square Feet
1180
Topo
LEVEL
Utility
ALL PUBLIC
Zoning
Please contact your municipal zoning officer
Deed Book
0359
Deed Page
0919
2026 Tax Values
Land Value / Taxable
9,600 / 9,600.00
Building Value / Taxable
33,930 / 33,930.00
Total Value / Taxable
43,530 / 43,530.00
Clean & Green
Inactive
Homestead Status
Active
Farmstead Status
Inactive
Lerta Amount
0
Lerta Expiration Year
0
Residential Data
Card 1
Style
BUNGALOW
Basement
FULL
Year Built
1889
Exterior Wall
ALUMINUM/VINYL
Total Living Area
1180
Full Baths
1
Half Baths
0
Fuel Type
GAS
Heating
NON CENTRAL
Heating System
NONE
Stories
1.0
Total Bedrooms
2
Total Family Rooms
0
Total Rooms
7
Fireplaces
0
Other Buildings & Yards
No OBY Data Found
Sales History
Sale Date
Type
Price
Book / Page
Other Info
10/21/1994
0
0359 / 0919
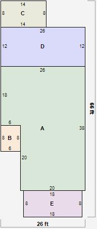
Parcel Sketches
Residential Card 1
A
MAIN
868 square feet
B
EFP ENCL FRAME PORCH
48 square feet
C
OFP OPEN FRAME PORCH
112 square feet
D
1S FR ONE STORY FRAME
312 square feet
E
EFP ENCL FRAME PORCH
144 square feet
Parcel Images
Please note:
this tab is for informational purposes only and may not show all delinquencies, see the Taxes tab for more accurate delinquent taxes due.