Elected Officials
Courts
Departments
Initiatives
Open Government
About
Login / Register
Home
/
Property & Tax Records
/
Property Records
/
Property & Tax Search
/
Parcel Profile
/
Print View
Search for Another Parcel
Parcel Profile
Historical Card
Sketches
Photos
Tax Map
Taxes
Print View
Print This Page
Address: 1110 W 10 ST
Parcel: 16030057013600
Parcel Profile
Address
1110 | W | 10 | ST
Street Status
PAVED | SIDEWALK
School District
CITY OF ERIE SCHOOL
Acreage
0.1562
Classification
R
Land Use Code
SINGLE FAMILY
Legal Description
1110 W 10 ST 41.25 X 165
Square Feet
1760
Topo
LEVEL
Utility
ALL PUBLIC
Zoning
Please contact your municipal zoning officer
Deed Book
2018
Deed Page
003801
2025 Tax Values
Land Value / Taxable
9,600 / 9,600.00
Building Value / Taxable
70,350 / 70,350.00
Total Value / Taxable
79,950 / 79,950.00
Clean & Green
Inactive
Homestead Status
Active
Farmstead Status
Inactive
Lerta Amount
0
Lerta Expiration Year
0
Residential Data
Card 1
Style
OLD STYLE
Basement
FULL
Year Built
1897
Exterior Wall
ALUMINUM/VINYL
Total Living Area
1760
Full Baths
1
Half Baths
0
Fuel Type
GAS
Heating
CENTRAL
Heating System
FORCED AIR
Stories
2.0
Total Bedrooms
3
Total Family Rooms
0
Total Rooms
8
Fireplaces
0
Other Buildings & Yards
Description
Built
Width
Length
Area
FRAME OR CB DETACHED GARAGE
1988
14
22
308
Sales History
Sale Date
Type
Price
Book / Page
Other Info
2/27/2018
LAND & BUILDING
0
2018 / 003801
QUIT CLAIM DEED
5/30/2003
LAND & BUILDING
0
101 / 1750
AFFIDAVIT
5/3/2002
LAND & BUILDING
92900
877 / 580
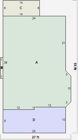
Parcel Sketches
Residential Card 1
A
MAIN
876 square feet
B
FRBAY FRAME BAY
8 square feet
C
EFP ENCL FRAME PORCH
84 square feet
D
EMP ENCL MASONRY PORCH
228 square feet
Parcel Images